ロの字 平屋 間取り (300 無料画像)

中庭がおしゃれ「ロの字」間取りの家!知っておきたい5つの注意点とは元ハウスメーカー、今不動産特化FPカルタのマイホームのイロハ。

×

平屋で「ロの字」間取りの中庭はできる?オリジナル実例と注意ポイント注文住宅ブルーハウスデザイン・性能・リゾートライフ、愛知、名古屋、豊橋、豊川、岐阜ならお任せください。

コの字の平屋の魅力とは?ロの字との違いやおしゃれな間取りと施工事例を解説 - 群馬県太田市の注文住宅・平屋・自然素材の家に強い工務店タカトーホーム。

ロの字平屋間取り」のアイデア 13 件間取り, 中庭のある家 間取り図, 平屋 間取り。

平屋・コの字型の間取り中庭のある約30坪・2〜4LDKの事例、後悔しないポイントを紹介福井の注文住宅・工務店ノークホームズ。

平屋の間取り、ロの字型かコの字型で迷ったら!メリット・デメリットを徹底比較住まいづくりに役立つ情報サイト「home tag」。

ロの字型の平屋 間取り・建築実例集!間取りづくりのポイントを紹介注文住宅なら建築設計事務所フリーダムアーキテクツ。

平屋の間取りはコの字?ロの字?事例やデメリット解決策を紹介あこがれの注文住宅を建築家と創る、かしの木建設千葉県・東京23区。

2022年版 タカトーホームの平屋注文住宅 人気ランキングベスト5 - 群馬県太田市の注文住宅・平屋・自然素材の家に強い工務店タカトーホーム。

間取り例付き 平屋のレイアウトとそのメリット・デメリット愛知・岐阜の新築・注文住宅は新和建設。

中庭を囲むロの字型の住まいコートハウス人気厳選プラン下関で注文住宅を建てる住宅会社井上建設。

平屋で「ロの字」間取りの中庭はできる?オリジナル実例と注意ポイント注文住宅ブルーハウスデザイン・性能・リゾートライフ、愛知、名古屋、豊橋、豊川、岐阜ならお任せください。

つながり”と“広がり”を叶えたロの字型の間取り、個性を表現する平屋の家 ~前編~家づくりマガジン東海4県No.1ビルダー・クラシスホーム。

36坪 3LDK中庭をロの字にぐるりと囲む、行き止まり無く回遊できる平屋の間取り図「madree マドリー 」。

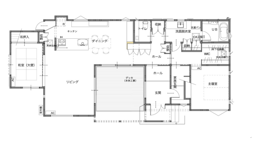
真ん中に中庭のある、ロの字型と言われる平屋の間取り考えてみましたよ。 中庭間取りは、実は動線計画が難しいので、そこも苦心して解消した間取りです。家の中央に中庭をつくると、お隣さんから覗かれない場所に、庭ができます。その庭 から、光も風も入って来て、空も。

SUUMO3000万円台 3LDK 55坪 中庭 平屋 ロの字 間取図 水盤が揺れる中庭と舟底天井。個性あふれるロの字型の家 - クラシスホーム津島店の建築実例詳細注文住宅。

8 8.9 中庭を眺める「ロの字型」の平屋◇完成見学会@北区細江町 聖隷三方原より車で5分- S.CONNECT エスコネクト。

中庭のある平屋間取り図42選! コの字・ロの字 ヒラヤスタイル。

中庭があるおしゃれな平屋の間取り11選!コの字型タイプも紹介おしゃれな平屋の間取りNavi。

平屋の家に中庭を取り入れたおしゃれな間取り7選*メリットデメリットもチェック!失敗しない!平屋の家を建てるための情報サイト。

中庭のある平屋の間取りおすすめ6パターン コの字型orロの字型- 一戸建て家づくりのススメ。

住宅 間取 中庭 平屋 ロの字型脱サラ主夫の子育て日記。

つながり”と“広がり”を叶えたロの字型の間取り、個性を表現する平屋の家 ~前編~家づくりマガジン東海4県No.1ビルダー・クラシスホーム。

中庭の家アウトドアリビングのある暮らし - SUMIKA LabすみからぼOTEC 飯田市の工務店 注文住宅を建てるなら。

中庭のある暮らし 。愛犬と暮らすためのロの字型「平屋」とよた工務店。

SUUMO 平屋 中庭 ロの字 間取りに関する注文住宅・ハウスメーカー・工務店・住宅実例情報。

つながり”と“広がり”を叶えたロの字型の間取り、個性を表現する平屋の家 ~前編~家づくりマガジン東海4県No.1ビルダー・クラシスホーム。

ロの字型の平屋子育て安心住宅 Design Craft Officeの間取り例 くふうイエタテ。

外出するより居心地いい、中庭のあるロの字型の平屋浜松市・湖西市のデザイン注文住宅 エスコネ。

間取りの決定までに考えた事 〜平屋の間取り図、色々載せました〜funarinのシンプルな30坪平屋のこだわり家づくり。

🚩ルームツアー🚩※間取り図有り24坪、中庭が楽しめるロの字型の平屋をご紹介します♪マイホーム 施工例 注文住宅 ルームツアー 新築一戸建て 新築注文住宅 家づくり 家づくりアイディア 子育て安心住宅 浜松市 工務店。

注文住宅 間取りプラン 28坪 中庭で家族だけの楽しみを見つけるコンパクトな間取りの家栃木県宇都宮市の工務店 薄井工務店。

平屋の間取りはコの字?ロの字?事例やデメリット解決策を紹介あこがれの注文住宅を建築家と創る、かしの木建設千葉県・東京23区。

中庭のある「ロの字」平屋注文住宅悠悠ホーム。

中庭のある平屋」実例とメリット・デメリットから間取りのポイントまで解説豊橋市の工務店ならハピナイス。

ロの字プランの中庭 HOUSE M 『ガレージハウス × 中庭のある平屋』- その他事例SUVACO スバコ。

中庭がおしゃれ「ロの字」間取りの家!知っておきたい5つの注意点とは元ハウスメーカー、今不動産特化FPカルタのマイホームのイロハ。

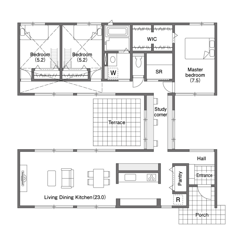
間取り紹介🏠\ 中庭を囲む「ロの字型」の平屋 ✨✓ 中央のウッドデッキを囲むように部屋を配置 ✓家中ぐるっと回れる回遊動線で、移動がスムーズ◎ ✓ キッチン〜洗面〜WIC〜寝室がつながる家事ラク動線もポイント! ✓書斎や土間収納など、暮らしやすさを叶える。

NEW モデルハウス ロの字型の平屋分譲住宅 販売中 分譲住宅・分譲地案内愛知 三重 岐阜の注文住宅・新築戸建て ハウスクラフト。

コの字 間取り平屋が「超」住みやすい理由と実例を解説 - 平屋の価格と間取り解説 平屋の達人。

三ッ沢上町の家ロの字型間取りの平屋 株 結設計東京・建築家住宅・建築設計事務所。

外出するより居心地いい、中庭のあるロの字型の平屋浜松市・湖西市のデザイン注文住宅 エスコネ。

平屋住宅の間取りの種類と特徴イムラの平屋住宅の施工事例を紹介大阪・奈良の注文住宅なら“木の家イムラ”地域密着の工務店。

住宅のプロ監修 中庭のある家の間取り3選!おしゃれな中庭を作るコツも解説建てたい家のイメージづくりおうちキャンバス。

36坪 3LDK中庭をロの字に囲みプライベート空間充実、平屋のように使える1階で家事完結の家の間取り図「madree マドリー 」。

中庭のある平屋の間取りおすすめ6パターン コの字型orロの字型- 一戸建て家づくりのススメ。

中庭のある平屋間取り図42選! コの字・ロの字 ヒラヤスタイル。

平屋の間取り7選。20坪~30坪台、2LDK・3LDK・4LDKの魅力的な間取りをご紹介家づくりを知るMy HousePalette マイハウスパレット ダイワハウス。

27坪3LDK・ロの字の平屋 中庭@浜松今井建設の設計プラン集。

ロの字型の中庭の間取り 周囲の視線を感じない住宅間取りシミュレーション - 楽天ブログ。

SUUMO平屋×中庭×2000万円台 間取り図有 玄関も廊下も圧倒的な開放感!愛犬も喜ぶ薪ストーブのあるロの字の家 -コラボハウス一級建築士事務所 中百舌鳥オープンスタジオの建築実例詳細注文住宅。

平屋の間取り おしゃれパターン6例!形状・部屋数 LDK ・坪数別解説HOME4U 家づくりのとびら。

他のフォトギャラリー:

ロの字 平屋 間取り