ニッチ棚 タモ一枚板 階段や廊下の壁に設置- オーダー 家具通販 ひろかた。
違い棚 幅128 ナラ無垢久遠仕上げ。
ストア 床の間材 床の間セット 床脇セット 違い棚。
永井銘木店 ストア 床の間材 ケヤキ 米松 違い棚セット。
日本家屋構造」の紹介-17・「床の間」まわりの構造 - 建築をめぐる話・つくることの原点を考える 下山眞司。
外寸と内寸の測り方 – ルミナスクラブショップ。
柱芯寸法とは 中量スチール棚-スチール棚.com。
床脇上質な日本のすまい。
居住空間のキーワード座敷-床脇編 地袋: エコな家づくり、エコな暮らしを実現する渡辺ハウジングの「やすらぎの家」。
家具 違い棚 60年以上前品 概略寸法:幅90cm高さ91cm奥行き31.5。
違い棚を作ってみよう 2:これまでのまとめ : すzのAVR研究。
ケヤキ材 陳列棚 HK-a-05300茶棚 飾り棚 違い棚 置水屋 水屋箪笥。
総無垢づくり 「埼玉県春日部市:ケヤキ無垢違い棚の製作一枚板専門店 榎本銘木店。
楽天市場 ミニチュア和風家具 違い棚 和風チェスト 木製 ケヤキ 横幅6.8cm 目安の縮尺1 16 日本製 : Y&T ナガタ工房。
無垢材 高級 茶棚 茶箪笥 違い棚 飾り棚 和箪笥送料込み飾り棚 和風 茶棚 和室 サイド。
書院造とは?床の間の特徴や寝殿造との違いも画像で解説 書院造のインテリア インテリアのナンたるか。
東建コーポレーション 違い棚建築用語辞書。
総無垢づくり 「埼玉県春日部市:ケヤキ無垢違い棚の製作一枚板専門店 榎本銘木店。
違い棚 チガイダナ とは? 意味や使い方 - コトバンク。
効率収納できる段違い棚シェルフ突っ張り上置き 板扉タイプ 引き戸 幅90cm上置き高さ54.5cm 通販 - ディノス。
和室ドールハウス 床の間・違い棚・天袋付きミニチュア和室。
住宅設備・建材・内装・電設・空調・管材が揃う商社 ダイネット。
唐木 天然木 飾り棚 違い棚 寸法 約 W122×D35.5×H127m 民芸家具 レトロ家具 和室 和家具 72。
床の間 とこのま 床柱種類と納まり作り方。
寺院新築、耐震補強、和風住宅・古民家再生の設計・工事実況中継、役立つ情報発信中株式会社菅野企画設計。
GR04 唐木家具 花梨材 総無垢 飾り棚 違い棚 茶棚 茶 タンス 箪笥 T5 棚・ラック。
和室違い棚:種類と寸法のひな型集 49件 traditional japanese architecture elements – 小中興昔話。
和室ユニット_床の間 - CLIP STUDIO ASSETS。
床の間ってどんなスペース?意外と知られていない床の間の活用アイデアcozy life コージーライフ。
和室違い棚:種類と寸法のひな型集 49件 traditional japanese architecture elements – 小中興昔話。
PLAN33 クローゼットSSシステム株式会社ロイヤル。
中古 伝統工芸 日光彫り 牡丹の彫刻が優美な印象の飾り棚 茶棚、違い棚、オープンラックR-041558ラフジュ工房。
神棚 神具送料無料! 屋根違い三社 大 ひのき製 神棚・神具の通販・販売 京仏壇はやし。
外寸・内寸って何?棚の設計ポイントを解説DIY Designer ディーアイワイデザイナー は、オンラインでDIYのシミュレーションが簡単に行えるサービスです。
アイアン違い棚3段デイスプレイベース 寸法:約52×52×H30cm卓上製品 : せともの本舗 - 通販 - Yahoo!ショッピング。
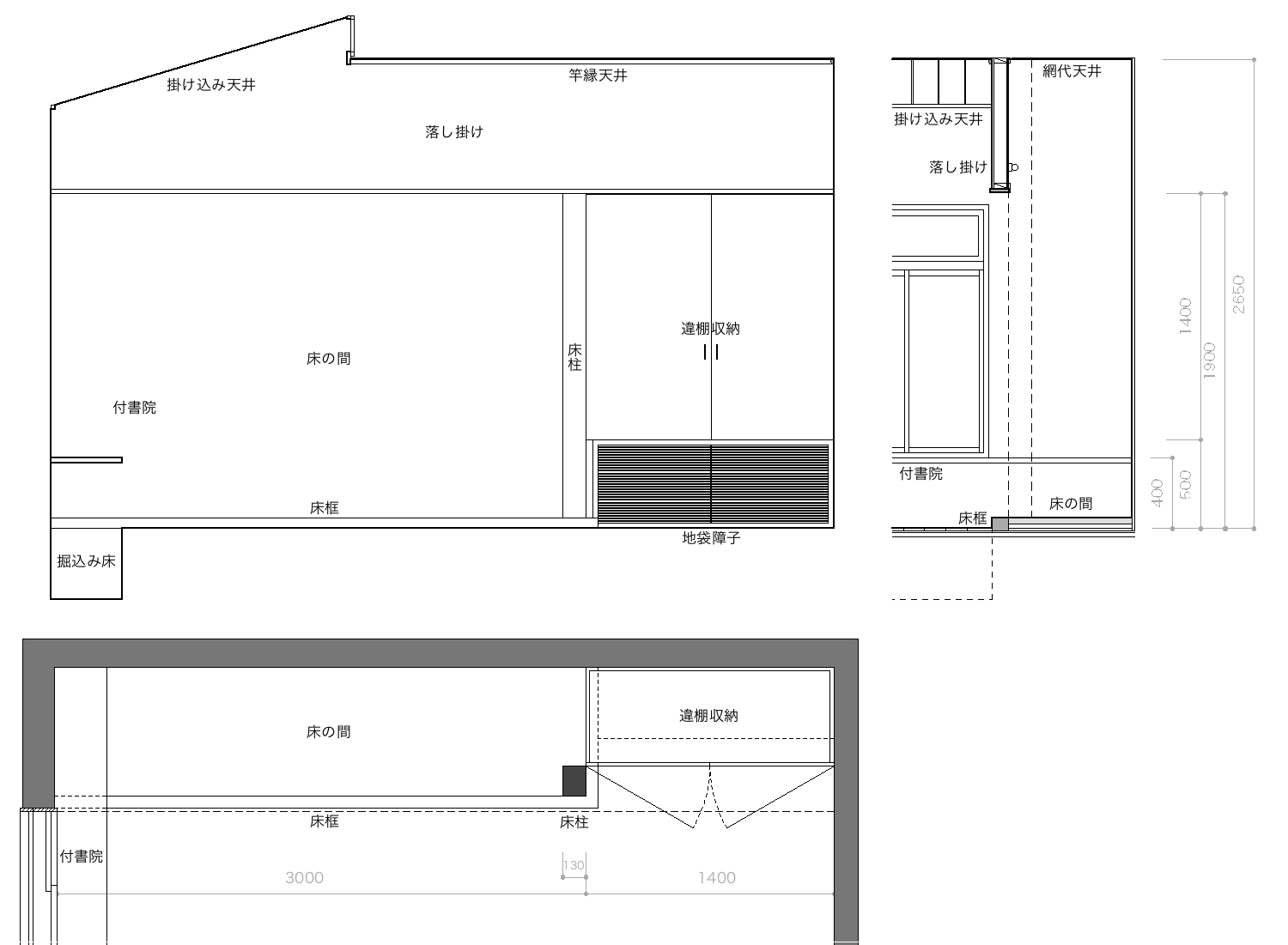
和風数寄屋注文住宅和室床の間の床柱落し掛け框違い棚断面設計図寸法北島建築設計事務所。
パイン無垢の本棚・収納棚なら本棚屋オーダーメイドの本棚通販。
違棚。
違い棚コミンカニストの古民家解體日記。
床の間製品紹介恵那合板 天然木化粧貼り、床の間。
スチール引き違い収納庫 TSシリーズ 幅1200 奥行400 高さ880 HK-TS43S 通販 - オフィス収納家具・ロッカーオフィス家具のカグクロ。
床の間。
海老束 欅 和室 違い棚 小槌 彫り物 床の間株式会社 阿久津材木店。
SHIKI NOKO SIDE CHESTシキ ノコ サイドチェスト - インテリア・家具通販 FLYMEe。
楽天市場 ミニチュア和風家具 違い棚 和風チェスト 木製 ケヤキ 横幅6.8cm 目安の縮尺1 16 日本製 : Y&T ナガタ工房。
神棚 神棚 屋根違い三社 小・中・大 ひのき 国産 日本製 屋根違い 三社宮 御神札 内祭 お宮 新築 開店 モダン シンプル お仏壇 仏壇 小物。
違い棚セット 欅・化粧貼り ロータリー杢 3面標準色塗装 棚板2枚 海老束 筆返し付属 サイズ:厚30巾450長1000 mm重量:約18kg和室造作部材,床の間部材,違い棚セット和室の木材屋和風造作材の加工販売、材木通販。
Y 中古 高級銘木‼重量感あり‼ 高級飾り棚 違い棚 唐木茶棚 茶箪笥 茶道。
ウォルナットオーダー飾り棚 - 東京の特注家具・オーダー家具に関するブログです。
天袋・地袋・違棚 — Yamato。
違い棚のインテリア実例RoomClip ルームクリップ。
71502ST 唐木 天然木 飾り棚 違い棚 寸法 約 W122×D35.5×H127m 家財おまかせ。
アイアン違い棚3段デイスプレイベース 寸法:約52×52×H30cm卓上製品 : せともの本舗 - 通販 - Yahoo!ショッピング。
唐木 天然木 飾り棚 違い棚 寸法 約 W122×D35.5×H127m 民芸家具 レトロ。
家具 違い棚 60年以上前品 概略寸法:幅90cm高さ91cm奥行き31.5。