9坪の家萩原 修 本通販Amazon。
GOOD DESIGN AWARD。
九坪ハウス考五十嵐太郎 ‹ Issue No.30 ‹ 『10+1』 DATABASEテンプラスワン・データベース。
しぼり.com-住宅設計者版-住宅ギャラリー建物詳細9坪の家。
なぜ注文住宅を建てることにしたか: 6 狭小住宅、実はみんな好きだろ - 家づくりラプソディ。
新建築住宅特集。
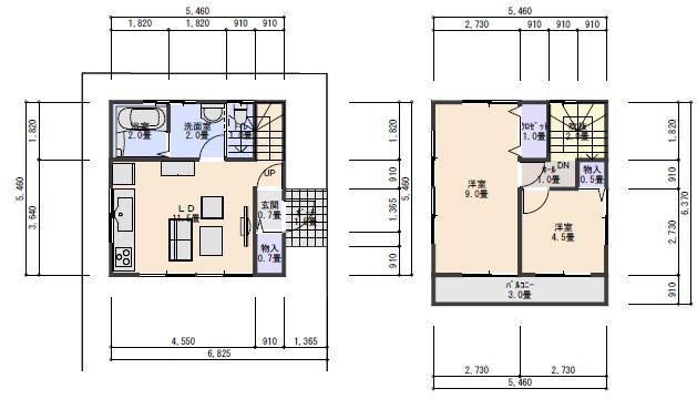
狭小住宅 間取り プラン:9坪強・視線が育むゆとりの木造3階建て住宅 東京の狭小住宅の間取り・3階建て K⁺A。
9坪の家 – Yan's diary。
9坪の土地に叶えた狭小3階建てルーフバルコニーのある家 東京で注文住宅を建てるジェネシスの施工写真集。
9坪ハウスこぢこぢ一級建築士事務所の建築事例SuMiKa建築家・工務店との家づくりを無料でサポート。
コンパクトな家 9坪ハウス- 名古屋市・知多市・常滑市・阿久比町で木の家・注文住宅を自然素材を使用した木の家 ・注文住宅を自然素材を使って建てるなら明陽住建。
9坪東京23区・千葉の狭小住宅ならアース。
9坪ハウス 外構工事 木製塀の更新作業完了しました! : 岩井沢工務所の現場日記。
9坪ハウス」に4人家族+猫2匹で20年住んだ感想は?民泊できる間取り図面も紹介ESSEonline エッセ オンライン。
9坪ハウス 小さな家で大きな暮らし。
建築家の伊礼智さん設計の「9坪の家」100 LifeAIBA 100 Story。
九坪ハウス考五十嵐太郎 ‹ Issue No.30 ‹ 『10+1』 DATABASEテンプラスワン・データベース。
9坪の家 完成事例一覧注文住宅のハウスネットギャラリ。
ツナグイエの9坪ハウス〜 「宮前町の家」株式会社国友トータルサービスツナグイエ。
9坪ハウスという最小限住宅がある。 – 有限会社ますいいリビングカンパニ。
9坪ハウス山形仕様 – 山形木族の会。
9坪ハウス 知っていますか? - 住宅会社の営業の僕がマイホームを建てました。
9坪の家 完成事例一覧注文住宅のハウスネットギャラリ。
真島元之建築設計事務所京都の住宅・建築設計事務所。
9坪の家から、9坪の宿へリンジン。
K様邸宮城 ・仙台ヒジリ建設注文住宅・一戸建て。
9坪のパラダイス 渋谷の家建築家・設計事務所All About。
9坪の家から、9坪の宿へリンジン。
9坪ハウス不動開発建設株式会社。
9坪ハウスKT建築家の設計事例建築家紹介センタ。
9坪ハウス家づくり相談SuMiKa建築家・工務店との家づくりを無料でサポート。
9坪 LDKに書斎のある間取り横浜の狭小住宅・二世帯住宅・注文住宅の間取りは中鉢建設。
建築家の伊礼智さん設計の「9坪の家」100 LifeAIBA 100 Story。
□ スローな暮らし・スローなデザイン □ 島田市で“自然と暮らす”木の家づくり:□ 究極の理想型住宅「9坪ハウス」とは?□8 22島田市にて開催□。
住まいNET新潟 の表紙に 9坪ハウス! - オーガニックスタジオ新潟。
間取りの考え方~9坪ハウスSawa~建築士のあたまの中。
9坪ハウス」のアイデア 12 件9坪ハウス, ハウス, 小さな家の間取り。
9坪の家「スミレアオイハウス」を、多摩エリアの日常を旅する宿にしたい! - クラウドファンディングのMotionGallery。
書店で建築家を探す その2建築家・設計事務所All About。
9坪の家から、9坪の宿へリンジン。
離れ9坪house -公式 金子工務店株式会社長野県の注文住宅・新築・土地探しなら金子工務店。
TKB邸 - coil 松村一輝建築設計事務所。
9坪ハウスのプランニング小屋をつくった20年暮らした。
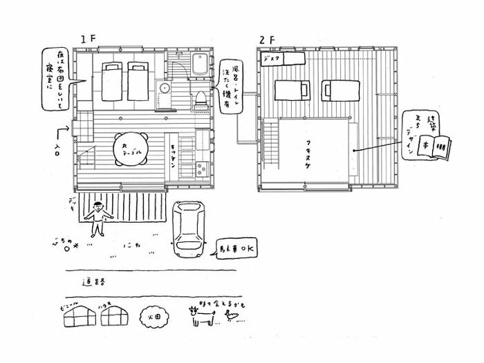
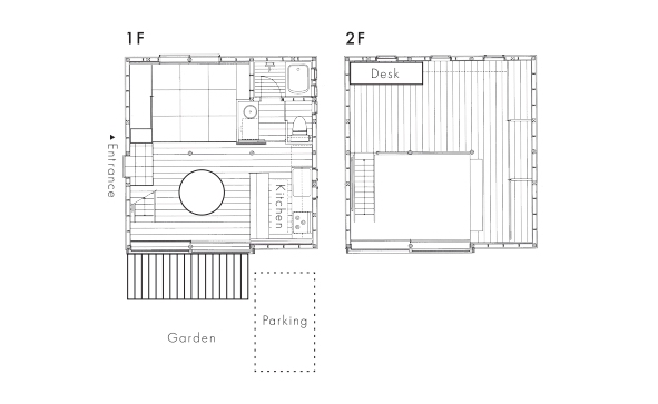
今年の「9坪ハウス」は「こどもと暮らす」がテーマ日経クロステック xTECH。
今年の「9坪ハウス」は「こどもと暮らす」がテーマ日経クロステック xTECH。
東京町家、9坪のOMソーラーハウス・小さな家のキッチン : irei blog。
9坪の家 完成事例一覧注文住宅のハウスネットギャラリ。
大正区 9坪の家 写真集 大阪で伊礼智氏「i-works」、注文住宅を建てるならソーラーコム。
9坪ハウス」に4人家族+猫2匹で20年住んだ感想は?民泊できる間取り図面も紹介ESSEonline エッセ オンライン。
9坪の家 つくって住んだ、こんなに快適!萩原 修 本通販Amazon。
9坪の家から、9坪の宿へリンジン。
おひとりさま。9坪。平屋。1-1。
9坪ハウス - 注文住宅事例SUVACO スバコ。
9坪の家に小さな改修を重ねて今のカタチに。会社員、ないとうしのぶさんの暮らし。Article& Premiumアンド プレミアム。
スケッチでみる、9坪ハウス 狭小住宅 実例建築研究建築士製図試験フリーハンド塾。
9坪の宿姫路市・加古川市周辺でおしゃれな注文住宅を建てるならヤマヒロ。
あくまで“狭小住宅”であって狭小地住宅ではない「9坪ハウス」とは?住まいの本当と今を伝える情報サイト LIFULL HOME& 039;SPRESS。
9坪の家「スミレアオイハウス」を、多摩エリアの日常を旅する宿にしたい! - クラウドファンディングのMotionGallery。
9坪ハウス」に4人家族+猫2匹で20年住んだ感想は?民泊できる間取り図面も紹介ESSEonline エッセ オンライン。
9坪ハウス 小さな家で大きな暮らし : 萩原百合著HMV&BOOKS online - 9784309280707。