大磯の調剤薬局併用住宅建替えの売場内装間取りインテリア設計図建築家31会。
店舗併用住宅・商業建築:ライフスタイルテラジマアーキテクツ。
店舗併用住宅の間取りプランとローンを組む際の注意点。
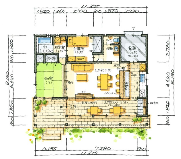
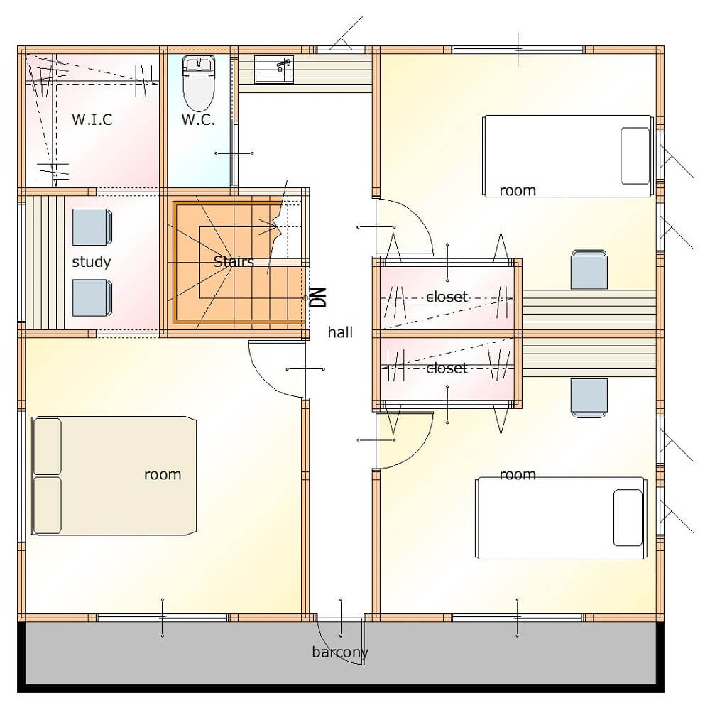
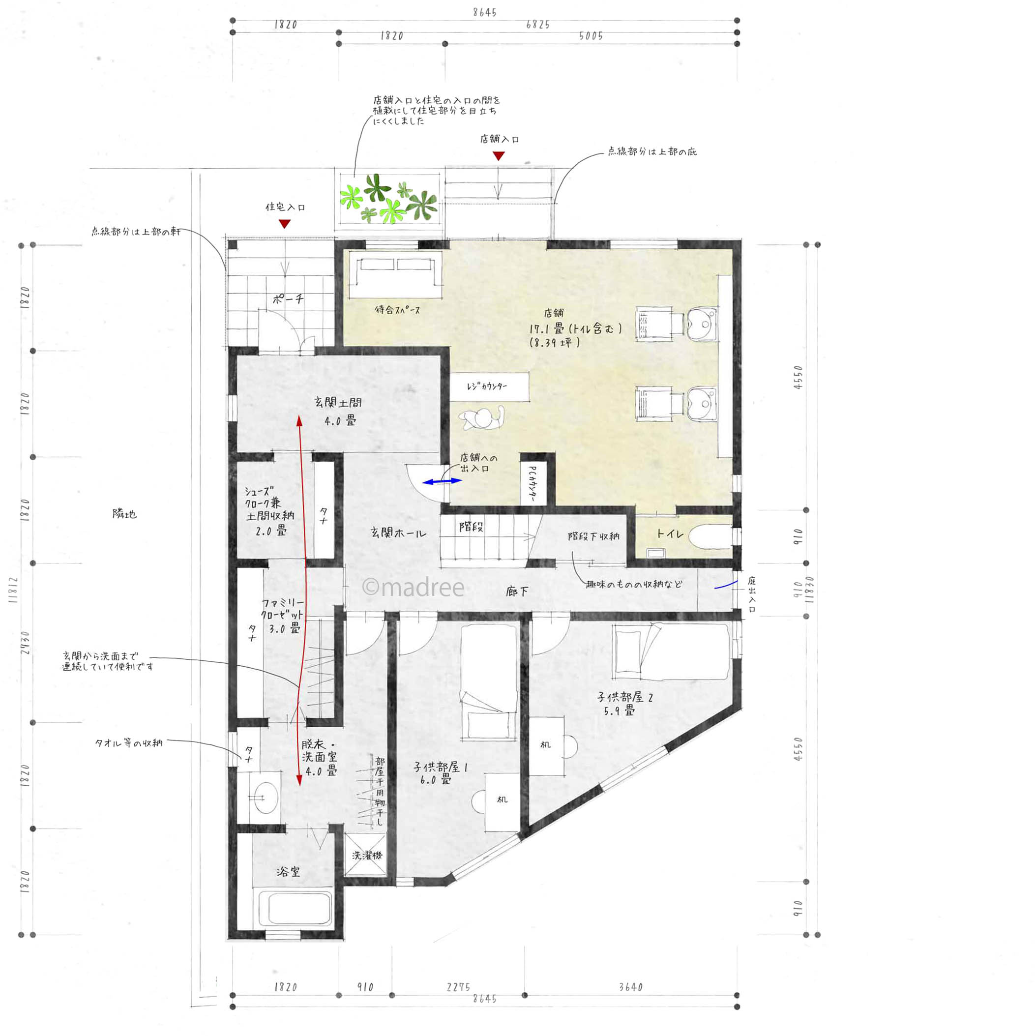
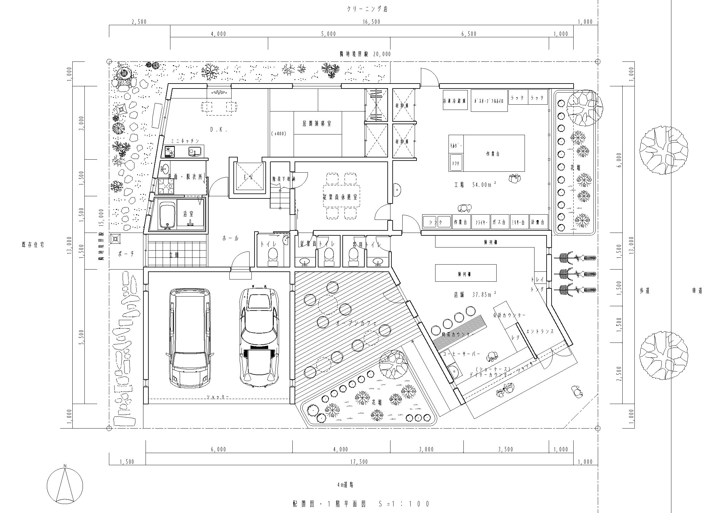
店舗併用の間取り一覧理想の間取り図と出会う「madree マドリー 」。
建築設計I-2。
店舗併用住宅の成功する間取りプラン! 玄関タイプに分けて一級建築士が解説します。Pleasant Design。
SUUMO 店舗付き住居プランに関する注文住宅・ハウスメーカー・工務店・住宅実例情報。
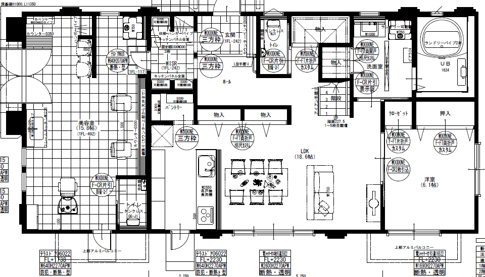
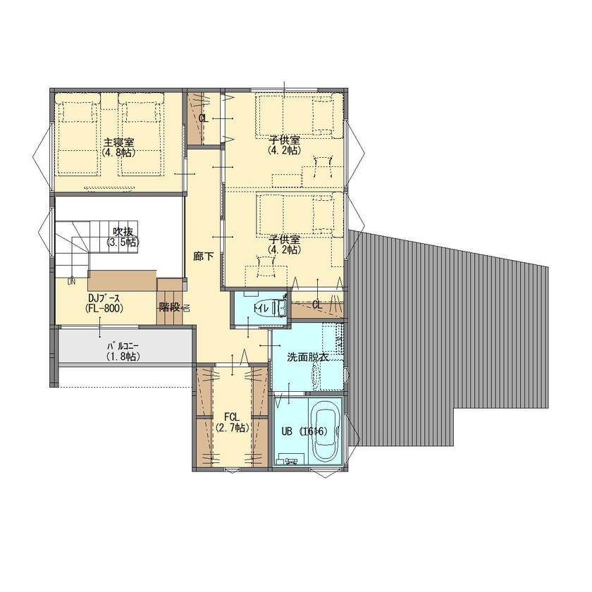
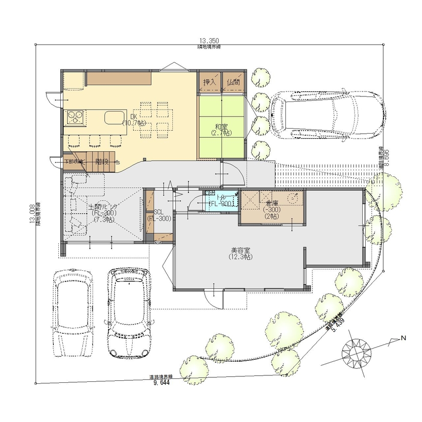
美容室併用デザイン住宅明日家デザイン工房建築設計事務所茨城県水戸市。
南相馬市原町区大木戸分譲地① 店舗併用住宅 カフェを考えます。注文住宅・新築ならアイリスホーム!相馬市・南相馬市の子育てを応援する工務店。
店舗併用3階建て住宅ハウジングパーククレバリーホームハウジングスクエアハウスメーカー クレバリーホーム - cleverlyhome。
35坪間取りプラン 店舗併用の家へリフォーム市川市・松戸市の全面リフォーム・リノベーションならlixilのトータルホームプランナ。
必要な場所に収納があるサロン併設住宅の間取り 36坪3LDK2階建 No.70Bみゆう間取り相談室。
福岡注文住宅 50坪台の間取り解説! バリアフリーなカフェ併用住宅注文住宅お役立ちコラム悠悠ホーム福岡・熊本・佐賀のハウスメーカ。
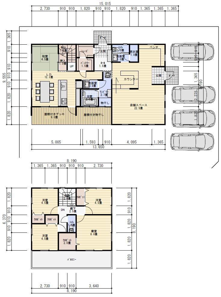
house-di:店舗併用3階建ての家 間取り図P・i・E - architecture , interior & design。
店舗併用住宅の間取間取り。
業種別 店舗併用住宅の間取り実例!プラン時のポイントや注意点を解説HOME4U 家づくりのとびら。
業種別 店舗併用住宅の間取り実例!プラン時のポイントや注意点を解説HOME4U 家づくりのとびら。
SUUMO角地 店舗併用住宅 空と庭を眺める店舗と寛ぎの住宅を土間リビングでつなげた店舗併用住宅 - ジューケン の建築実例詳細注文住宅。
店舗付の住宅を考えてみるよ: 住みたい間取りをつくってみるよ。
職住をゆるやかに繋げる美容室併用住宅滋賀県の建築設計事務所・建築家アルツデザインオフィス。
店舗併用住宅福山市で注文住宅・平屋が得意な工務店スリーピースホーム。
本町3丁目団地併設店舗間取図。
店舗併用住宅」のアイデア 7 件店舗併用住宅, 住宅, 間取り。
自宅兼店舗とは?間取りの工夫や事例、費用の目安などを徹底解説! 住宅展示場のハウジングステージ。
オーナー様を募集します。高岡市末広町 店舗併用住宅です。前田プランニングオフィスのニュースまいぷれ 高岡市。
業種別 店舗併用住宅の間取り実例!プラン時のポイントや注意点を解説HOME4U 家づくりのとびら。
事務所、ガレージ付きの賃貸併用住宅あたりまえの間取り集500プラン!ミサワホーム。
店舗併用3階建て住宅新昭和ハウジングスクエア。
35坪間取りプラン 店舗併用の家へリフォーム市川市・松戸市の全面リフォーム・リノベーションならlixilのトータルホームプランナ。
カフェとマイホームの夢を 同時に叶えた店舗併用住宅。│建築実例│ 公式 クレバリーホームcleverlyhome自由設計の住宅メーカ。
第4期13回「住宅付き店舗での暮らし」の間取りについて第4期 2017年〜住まいのかたちアンケート住まいのかたちMagazinefor MUJI LIFE。
店舗併用の間取り一覧理想の間取り図と出会う「madree マドリー 」。
デザイン&プラン賃貸併用住宅木造注文住宅・戸建の住友林業 ハウスメーカー。
店舗併用の間取り一覧理想の間取り図と出会う「madree マドリー 」。
店舗併用住宅の間取り図。自宅にお店をつくってみましょう。
タカシンホーム自由設計のアイムの家で、20代からの新築、家づくり、リフォーム。広島県三原市の工務店です。
SUUMO店舗併用住宅 間取図 アイランドキッチン こだわりのデザインで、想いを叶えた美容室併用の住まい - ロゴスホーム 札幌北の建築実例詳細注文住宅。
業種別 店舗併用住宅の間取り実例!プラン時のポイントや注意点を解説HOME4U 家づくりのとびら。
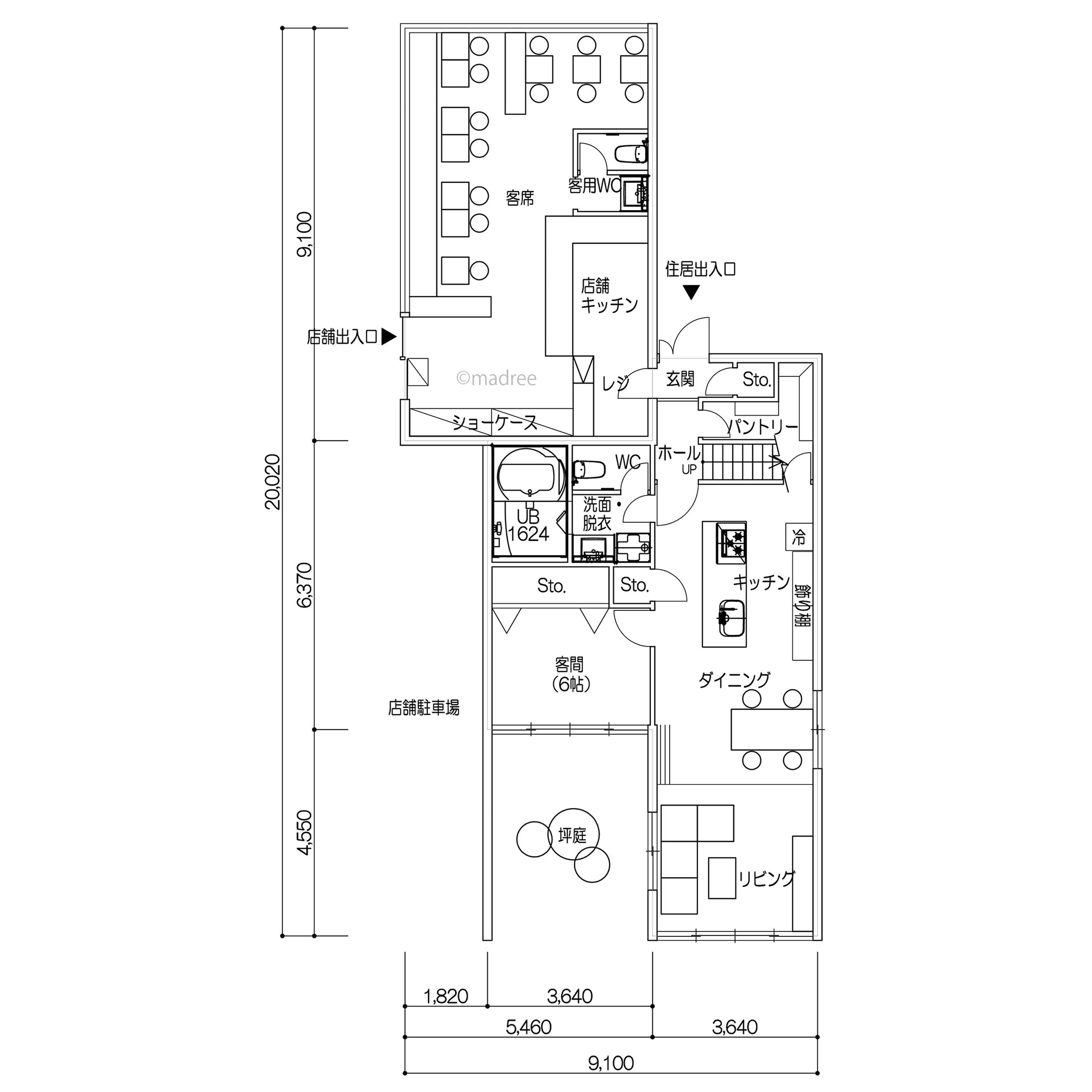
SUUMOビルトインガレージ 店舗併用住宅 カフェ風 3LDK間取り 和のエッセンスを散りばめた店舗併用住宅 - maida koumutenの建築実例詳細注文住宅。
間取り 店舗併用住宅 北 6-1-1 延べ床面積36.3坪 3LDK+エステ室: 間取りソフト 3Dマイホームデザイナー で間取り作り-方法と実例集。
house-di:店舗併用3階建ての家 間取り図P・i・E - architecture , interior & design。
店舗併用住宅の間取りプランとローンを組む際の注意点。
店舗併用住宅をログハウスで建築けのフロンティアワールド。
開放感とくつろぎを感じられる店舗併用住宅」<後編>東京の高級注文住宅ならベルクハウス。
店舗併用住宅を建てるには?住宅ローンや立地のポイントを徹底解説SUUMOお役立ち情報。
間取り 店舗併用住宅。
搬入動線のある店舗併用住宅店舗併用住宅人気厳選プラン下関で注文住宅を建てる住宅会社井上建設。
店舗・サロン併用住宅」の記事一覧みゆう間取り相談室。
業種別 店舗併用住宅の間取り実例!プラン時のポイントや注意点を解説HOME4U 家づくりのとびら。
自宅兼店舗とは?間取りの工夫や事例、費用の目安などを徹底解説! 住宅展示場のハウジングステージ。
SUUMO角地 店舗併用住宅 空と庭を眺める店舗と寛ぎの住宅を土間リビングでつなげた店舗併用住宅 - ジューケン の建築実例詳細注文住宅。
店舗併用の間取り一覧理想の間取り図と出会う「madree マドリー 」。
ダイワハウス注文住宅暮らし提案店舗併用住宅。
自宅兼店舗とは?間取りの工夫や事例、費用の目安などを徹底解説! 住宅展示場のハウジングステージ。
店舗併用住宅の間取り間取り。
アットホーム 一条工務店施工 旧理髪店舗併用住宅 提供元:ララハウス 株太田市の売店舗 6987198636。
建築設計 店舗併用住宅 商住建築2 B。
店舗兼住宅の間取り実例7つ 業態別、階数別・狭小地 ポイントや注意点も解説 - お家のいろは。
店舗併用住宅 理容院 4LDK 東玄関株式会社ミツル建築工房。
スタジオを完備した店舗併用住宅千葉・東京・埼玉・茨城で注文住宅を建てるなら広島建設のセナリオハウス。
住宅展示場 都市の敷地を最大限に活用しながら、快適に暮らす ミサワホーム。
南相馬市原町区大木戸分譲地① 店舗併用住宅 カフェを考えます。注文住宅・新築ならアイリスホーム!相馬市・南相馬市の子育てを応援する工務店。
96坪 ゆとりある店舗併用住宅 – まどりびと。
業種別 店舗併用住宅の間取り実例!プラン時のポイントや注意点を解説HOME4U 家づくりのとびら。
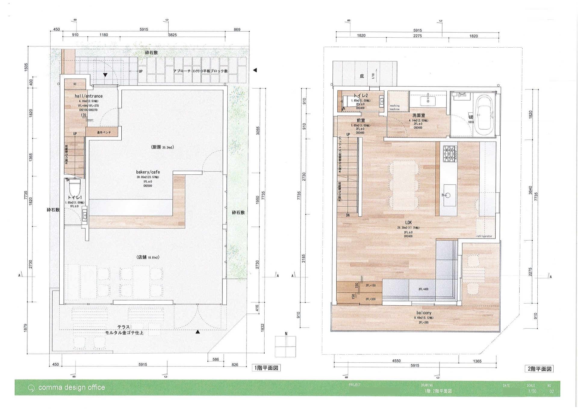
狭小住宅 間取り プラン:11坪・三角地に建つ店舗併用3階建て住宅。 東京の狭小住宅の間取り・3階建て K⁺A。
店舗併用住宅の間取り間取り。
店舗併用の間取り一覧理想の間取り図と出会う「madree マドリー 」。
間取り 店舗併用住宅 45坪 4LDK。
店舗併用住宅の成功する間取りプラン! 玄関タイプに分けて一級建築士が解説します。Pleasant Design。