ランドリールーム 間取り図 (360 無料写真)

後悔しないランドリールーム!家事動線が便利な間取りの事例集。

×

平屋×3LDK×29坪ファミクロ・ランドリールーム・回遊動線!30坪以下で家事ラクな間取りNo.1-7咲くくらし。

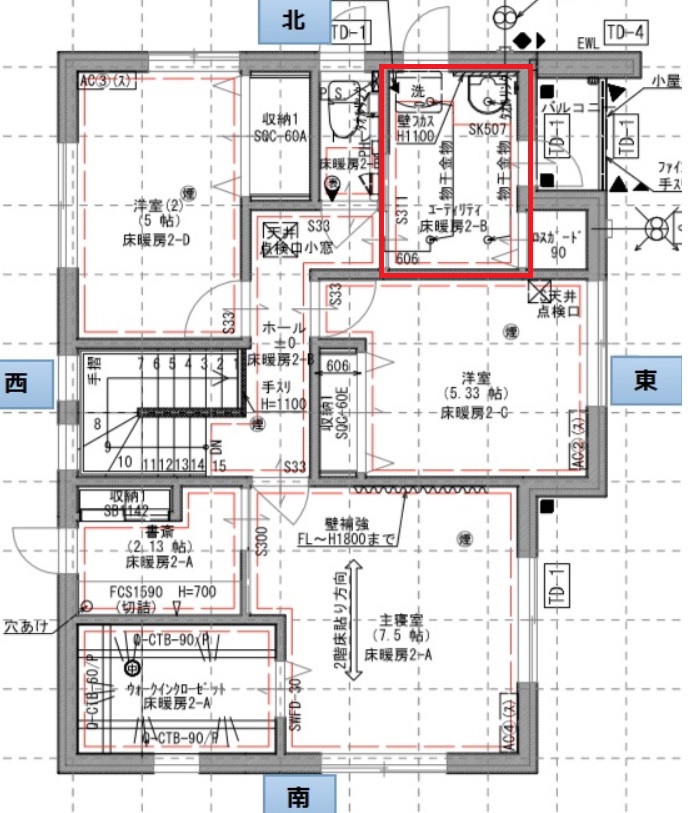
ランドリールームが便利な、水回りが縦に並んだ間取り こんばんは〜 最近は室内干し派の方が増えてる感じがあるので、 ランドリールームがある 間取り、投稿します👍 . 動線にもこだわられていますね〜。 □□□ 1階 □□□ .家事がラクになる動線3つ、ご。

ランドリールームは何畳がベスト?検討するポイントと間取り例を解説アサヒグローバルホームの建売総合サイト。

注文住宅 ランドリールームで洗濯・家事動線コンパクトな間取りを!メリット・デメリットも紹介住まいづくりに役立つ情報サイト「home tag」。

ランドリールームのある家間取りコレクション大阪市・東淀川区・鶴見区、東大阪市で新築一戸建て、不動産のことならハウスパートナーへ。

家事動線が良いランドリールームのある間取り例。

家事動線の良い間取り~いまどきのランドリールームは1階が主流? - シンプルな家、COZY公式 - 新築一戸建ての規格住宅。

ランドリールームのある家 4LDK 間取りプラン集千葉県松戸市で注文住宅・新築分譲住宅・土地を探すならエドケンハウス。

ランドリールームのある家の間取り図。畳コーナー。理想の間取り。

ちょっとでも楽にしたい !! 家事動線 ランドリールーム編 - 子育て家庭の家作り -MIRAIZ BlogMIRAIZ。

おしゃれな洗面所ランドリールーム①おすすめの間取りの注文住宅一級建築士設計事務所 「ライフホーム設計」。

家事動線の良いランドリールームがある住まい間取り図と実例でポイントを解説 - R+house。

ランドリールーム・サンルームのある平屋間取り図46選! 室内物干しで家事動線がよい家 ヒラヤスタイル。

web内覧会2019 ランドリールーム1 家事ラクの要!シンプルでもこだわりいっぱい!いとしのわがや。

ランドリールームやファミリークローゼットのある間取りづくり家事動線の良い平屋の事例についてもご紹介KONOHANA STYLEMAGAGINE。

ランドリールームで洗濯家事攻略!AQ Group アキュラホーム。

ランドリールームとは? 間取り図実例や後悔しないためのポイント注文住宅なら建築設計事務所フリーダムアーキテクツ。

3畳のランドリールームで、いつでも洗濯&乾燥&衣服整理。自分のペースで家事する家ESSEonline エッセ オンライン。

間取り事例有 ランドリールームがある注文住宅で家事効率UP! - 日本住宅ツーバイ神奈川を中心に新築注文住宅・分譲住宅をご提供。

35坪 4LDK一直線の洗濯動線で時短家事、子どもファーストな目線の届く家の間取り図「madree マドリー 」。

和室を挟んだ洗濯動線ってめっちゃ便利! 洗濯動線 家事ラク間取り 便利な間取りシリーズ staff:松本舞鶴市・福知山市・綾部市で新築&注文住宅を建てるならエコ・ビータ。

間取りプラン集アイワホーム株式会社 群馬県注文住宅 二階建て・平屋・太田・伊勢崎・前橋・高崎。

ランドリールームは何畳がベスト?検討するポイントと間取り例を解説アサヒグローバルホームの建売総合サイト。

間取り ランドリールーム - 夢の家 ブリアール 〜共働きの家。

31坪 3LDK充実ランドリーでサクサク洗濯仕事、ムダ廊下を省いたコンパクト生活動線の家の間取り図「madree マドリー 」。

新築住宅の間取り事例 ランドリールームのメリット&デメリットとおすすめ間取り - お家のいろは。

玄関の手洗い場やランドリールーム、多目的ホールなど、快適&便利に暮らせる間取りプランをご紹介株式会社コウエイハウジング。

SUUMO ランドリールームのある家に関する注文住宅・ハウスメーカー・工務店・住宅実例情報。

第8回 ランドリールーム・水回りの間取り・動線 夢のマイホーム奮闘記夢のマイホーム奮闘記イエマガー家づくり情報webマガジン。

ランドリールームのある間取り 参考になる4パターン 奥様の好みに合わせて - 一戸建て家づくりのススメ。

家事動線に優れた間取りとランドリールームについて注文住宅・工務店ならサティスホーム - 三重県四日市・津市。

洗面脱衣別で広めのお風呂、2階にランドリールームがある洗濯動線の良い間取り 31坪3LDK2階建 No.106Aみゆう間取り相談室。

ランドリールーム 洗濯室 とファミリークローゼットは採り入れるべき?~家事動線・間取りの考察~takumiの住宅・建築相談所。

Web内覧会 こだわりの2階ランドリールーム 洗濯・物干し部屋一条工務店・i-smart - Aoiのi-smartで快適ライフ。

実例紹介 ランドリールームとは?使いやすい間取りや広さ、ランドリールームの収納など快適に使うポイント・アイデアを解説SUUMOお役立ち情報。

女性一級建築士が解説!家事を楽にする間取りと室内干しに適したお家づくりのポイントマイホームマガジン。

家事動線の良いランドリールームがある住まい間取り図と実例でポイントを解説 - R+house。

ㅤㅤㅤㅤㅤㅤㅤㅤㅤㅤㅤㅤㅤ 〖 デザインラボの間取り〗 ✎✎✎point ☞ランドリールーム付きの平屋 ☞ 浴室と土間収納を広めに ☞トイレ2つで来客用と 使い分けられる◎ ※ゾーニング段階の間取りです。 ご参考までにご覧いただけると幸いです✦✧ ※コメントに気付けず。

住まいのレシピ2〜ランドリールーム・リフォーム編 - トータテマガジン - 住まいのトータテがお届けする情報サイト。

使いやすいランドリールームの間取り タイプ別チェックポイントよつば暮らしデザイン室。

3畳のランドリールームの使い方は?用途別の配置見本を3つ紹介 - &マドリ。

あなたはどのタイプ?ランドリールームのある間取り例 3タイプよつば暮らしデザイン室。

ランドリールームのある間取り 参考になる4パターン 奥様の好みに合わせて - 一戸建て家づくりのススメ。

2025年最新版 絶対に見るべきファミリークローゼットのおすすめ間取り10選!収納デザインソムリエ。

建売住宅の間取り実例vol.17 ランドリールームは共働き世帯におすすめ。

今日はランドリールームがある間取り🌀 . 以前目立たずに干せる間取りが人気でしたので、今回も◎ □□□ 1階 □□□ . ▶︎ランドリールーム!. アイロン台を置けて、室内干しもできますさらにファミリークロークもあるので、 下着やパジャマを収納しておけ。

福岡注文住宅 30坪台間取り!ランドリールーム&パントリーの家注文住宅お役立ちコラム悠悠ホーム福岡・熊本・佐賀のハウスメーカ。

30坪代 家事動線の良い間取りをつくるためのポイントと実例5選株式会社はなおか。

30坪台 家事動線の良い間取りで家事の負担を減らすには?建築実例とともに解説 - くらしえる便り。

36坪 3LDKウォークスルーで洗濯動線は効率良く!ランドリールームのある平屋の間取り図「madree マドリー 」。

ランドリールーム・サンルームのある平屋間取り図49選! 室内物干しで家事動線がよい家 ヒラヤスタイル。

ランドリールームとは? 間取り図実例や後悔しないためのポイント注文住宅なら建築設計事務所フリーダムアーキテクツ。

注文住宅でランドリールームが欲しい!間取り例と費用相場を解説HOME4U 家づくりのとびら。

実例紹介 ランドリールームとは?使いやすい間取りや広さ、ランドリールームの収納など快適に使うポイント・アイデアを解説SUUMOお役立ち情報。

ランドリールームのある間取り実例失敗しない考え方のポイントを解説。

今日はランドリーから寝室まで 一直線の間取りをご紹介します🙌 脱衣室兼ランドリールームから ファミクロ、ウォークインクローゼットを通って主寝室まで一直線✨ 朝に洗濯派の方は 起きて着替えながら洗濯機へポイっと、 夜に洗濯派の方は 洗濯→乾燥や中干しをしかけて。

間取り図・写真あり 脱衣所兼ランドリールームで洗濯動線が劇的に快適になった3つの理由さくらいろほーむ。

広めのランドリールーム兼脱衣室のある家事ラク間取り 34坪4LDK2階建 No.65Aみゆう間取り相談室。

ランドリールームとは? メリット・デメリット、計画のポイント、間取りや事例写真をご紹介わたしの家木造注文住宅・戸建の住友林業 ハウスメーカー。

家事動線が良いランドリールームの間取り図と実例平屋・二階建てのアイデアをご紹介 - 鬼丸ハウス注文住宅・戸建て住宅・アパート建築。

ランドリールーム3畳のレイアウト収納や間隔など実例を公開!Smileの住まいるーと。

実例あり 失敗しない!ランドリールームの間取り完全ガイド収納デザインソムリエ。

バイクガレージとランドリールームのある家!洗濯導線にこだわった間取りプランをご紹介株式会社コウエイハウジング。

ランドリールームのメリットや間取りは?ミーレ洗濯機の設置実例も紹介ミーレ Life with Miele。

他のフォトギャラリー:

ランドリールーム 間取り図