図面からは読み取りにくいこと。一条工務店で建てたまぼこのきろく。
屋内用 建築化照明器具 ライン照明 シームレス建築化照明器具「C-Slim」 施設用照明器具Panasonic。
新JP-K9.5 12.5 不燃石膏ボード成型ユニット JUPITA。
間接照明オーデリック株式会社。
間接照明の設計照明設計サポート P.L.A.M.Panasonic。
Panasonic 建築化照明 LGB50070XB1商品紹介照明器具の通信販売・インテリア照明の通販 ライトスタイル。
5つのSMILE ③間接照明│家を建てよう!マスオの間取り・ブログ・ゆる〜り家。
間接照明」のアイデア 13 件間接照明, 照明 デザイン, 照明。
建築化照明照明設計サポート P.L.A.M.Panasonic。
化粧用下地壁製品情報南海プライウッド。
間接照明オーデリック株式会社。
間接照明+黒塗りの天井で、落ち着きのあるリビングを実現」 - ikukoさんのリビング 11 12- イエナカ手帖。
TRH D-FPL。
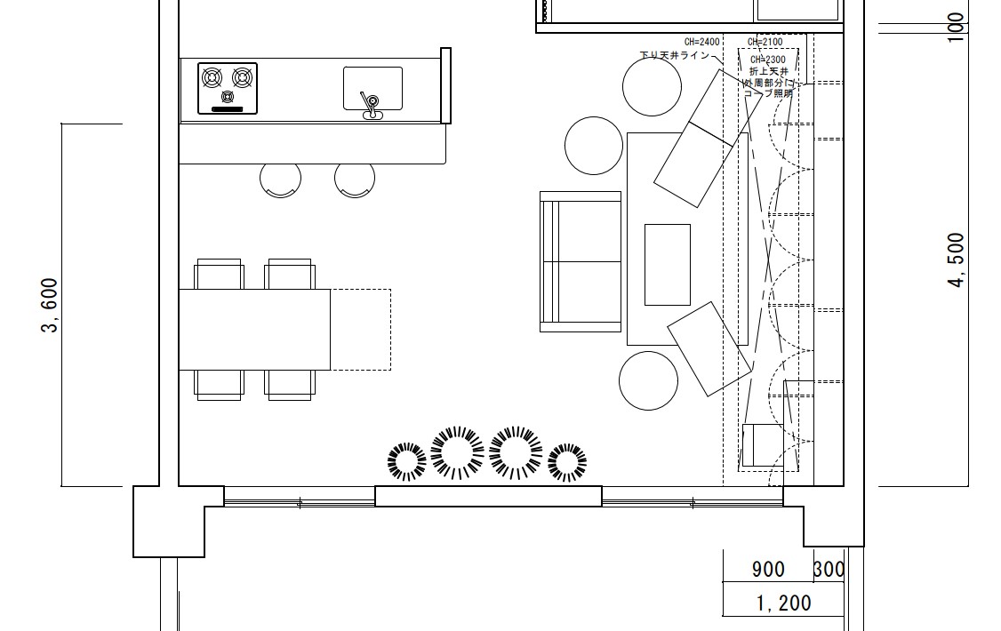
間取り紹介 28 リビング:建築化照明の為に天井下げました&プチ内覧会一条工務店で建てたまぼこのきろく。
間接照明で空間アレンジ!ブログ堺市・南大阪のリフォーム・リノベーションは「イズホーム戸建てリノベーション」へ。
間接照明の設計照明設計サポート P.L.A.M.Panasonic。
間接照明の設計照明設計サポート P.L.A.M.Panasonic。
おしゃれな間接照明とは?施工例を見ながら失敗しない設計をしよう! – でんきのハテナ。
建築化照明照明設計サポート P.L.A.M.Panasonic。
コーニス照明 こーにすしょうめい。
コーニス照明の効果とランプ位置通販モノタロウ。
間接照明のよくある失敗とは? 原因と解決方法も大公開!光の知識ヒカリイク。
建築化照明器具 SLIT三菱電機 照明。
我が家の照明計画 間接照明きんねずのいえ。
間接照明のよくある失敗とは? 原因と解決方法も大公開!光の知識ヒカリイク。
プロセス時間の短縮化を実現する省施工商材、間接照明ユニット「N-PITA エヌピタ 」が、設計者向けコンテンツを追加したリニューアルサイトを公開野原グループ株式会社のプレスリリース。
建築化照明器具 SLIT三菱電機 照明。
憧れの間接照明とカーテンボックスのおしゃれなマッチングとは50歳からの住まいのコーディネーター インテリアコーディネータ。
一般的な間接照明建築設計研究所。
演出照明の設計方法 コーニス照明照明設計サポート P.L.A.M.Panasonic。
コーニス照明の効果とランプ位置通販モノタロウ。
エコカラット 間接照明 テクニック3選!プロが解説!エコカラット施工マニア。
LEDデザインベースライト「Architectural CorniceCove Type」 施設用照明器具Panasonic。
建築化照明器具 SLIT三菱電機 照明。
9月7日 間接照明ってセンスっす ノ-ω- ノ谷川建設で自由設計の家を造る。
株式会社 遠藤照明。
Panasonic 建築化照明 LGB50070XB1商品紹介照明器具の通信販売・インテリア照明の通販 ライトスタイル。
すまいのあかり設計集<事例編>:住宅 手法別事例「建築化照明」 住宅用照明器具Panasonic。
アルビームインテリア コーニス型照明用建材 PCタイプALB-IN-IL-KN-PC-27-W。
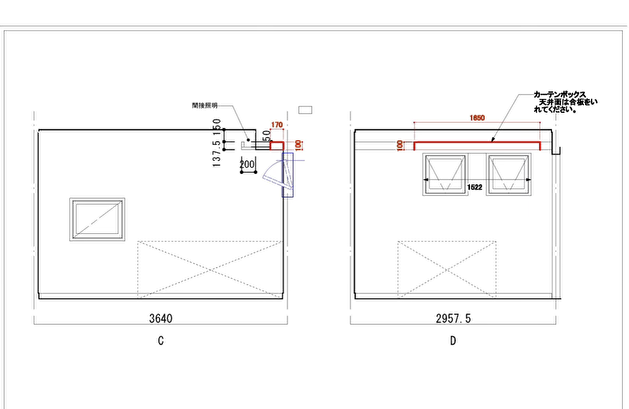
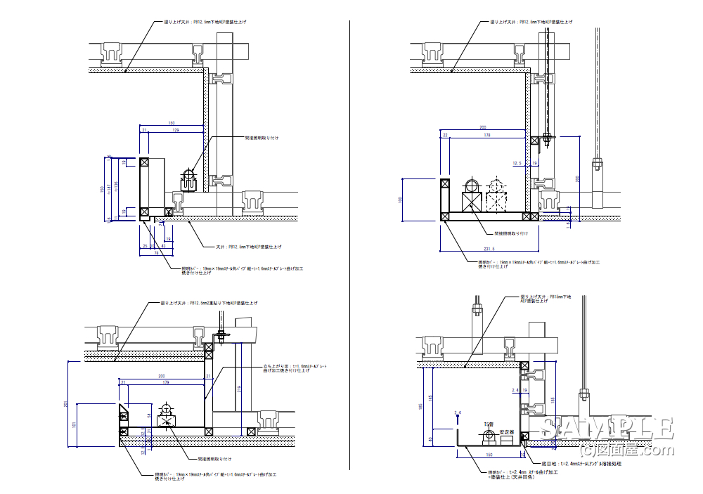
天井間接照明の断面図事例図面屋.com 店舗設計詳細図「虎の巻」。
建築化照明器具 SLIT三菱電機 照明。
高級ツーバイの現場は 間接照明が致死量です🫠 1〜3枚目は範囲は広いですが よくあるコーブ照明なのでまだいいです🤔隠した光源から天井を照らすのがコーブ照明 壁を照らすのがコーニス照明です4枚目もコーブ×勾配天井🤔 問題は5〜6枚目の図面です 壁にも天井にも。
すまいのあかり設計集<事例編>:住宅 件名別事例「建築化照明プラン008」 住宅用照明器具Panasonic。
提案の照明 意外と簡単!間接照明を取り入れた空間の演出 - architect・mama。
間接照明オーデリック株式会社。
注文住宅でも旅館のような非日常を演出できる?演出のための照明計画についてアーキトリック一級建築士事務所。
間接照明オーデリック株式会社。
こだわりは間接照明!リノベーション事例仙台のリノベーションなら365リノベ。
間接照明のとは? 種類と効果的な空間づくり照明・LEDAll About。
コーニス照明の失敗例とは?寸法や図面に注意しておしゃれな室内を工務店 八幡 青梅の高気密高断熱の家。
建築化照明設備建築設計研究所。
すまいのあかり設計集<事例編>:住宅 件名別事例「建築化照明プラン002」 住宅用照明器具Panasonic。
一般的な間接照明建築設計研究所。
間接照明オーデリック株式会社。
少しの工夫でお家をグレードアップ! 照明 編② 南大阪・和歌山県 和歌山市・岩出市 で自然素材を使ったデザイン住宅を建てる泉佐野の工務店Smicle スマイクル。
建築化照明設備建築設計研究所。
回廊 コーニスライティングLIGHTING IDEA ライティングアイデア 間接照明大光電機株式会社。
建築化照明器具 SLIT三菱電機 照明。
壁面照明のイロハ⑤ ~コーブ照明とコーニス照明の違い~ - 住宅産業塾。