リビングと主寝室の窓越しに広がる、心癒される中庭のある平屋の家間取りプラン集千葉県松戸市で注文住宅・新築分譲住宅・土地を探すならエドケンハウス。
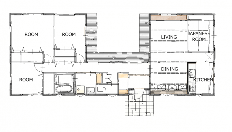
中庭のあるコの字型の間取り。
平屋プラン住まいの事なら注文住宅の建築工房櫓。
小屋裏と中庭のある平屋。合志市御代志で平屋実例見学会開催!シアーズホーム 注文住宅で建てる一軒家。
家族で住む中庭のある平屋の間取り図平屋間取り。
中庭があるおしゃれな平屋の間取り11選!コの字型タイプも紹介おしゃれな平屋の間取りNavi。
木の家¥シミュレータ。
中庭のある平屋の間取りおすすめ6パターン コの字型orロの字型。
平屋に中庭は必要か?中庭のある家の間取りを徹底考察。
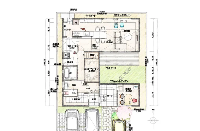
室内に広がりをもたらす平屋建ての中庭のある家 南・東玄関26坪間取り:: 住宅プランネット マイホームコンペ。
相模原市の平屋の中庭住宅の設計。
SUUMO3000万円台 3LDK 55坪 中庭 平屋 ロの字 間取図 水盤が揺れる中庭と舟底天井。個性あふれるロの字型の家 - クラシスホーム津島店の建築実例詳細注文住宅。
平屋で中庭を愉しむ間取り図 設計 プラン の注意ポイント。
中庭のあるリビングが広く見える平屋ARCHITECT STUDIO TEGOKORO遠藤建築店 の間取り例 くふうイエタテ。
31坪 3LDK中庭があるからこそ、光と風を感じる暮らしを叶えた平屋の間取り図「madree マドリー 」。
注文住宅 中庭のある平屋に暮らしたい!メリットやデメリット、活用方法を紹介住まいづくりに役立つ情報サイト「home tag」。
中庭のある平屋建ての間取り図平屋間取り。
中庭のある平屋の間取り子育て安心住宅 Design Craft Officeの間取り例 くふうイエタテ。
中庭回遊の平屋:間取り図P・i・E - architecture , interior & design。
おしゃれな中庭のある家の実例4選!費用の相場やデメリットも解説!住宅展示場のハウジングステージ。
今日は人気の平屋の間取りです🙌 住宅密集地だと隣家からの距離や視線が気になりますよね🤔 ということで、中庭を配置しています🌱LDKにいながらお子さんを見守れます✨ 中庭なので、少し目を離した隙に外へ行ってしまう ! といった心配もなくなりそうです👏 窓を開けて。
中庭のあるコの字型プラン、シンメトリーなデザインが印象的な国産桧の家 ログハウスのTALO。
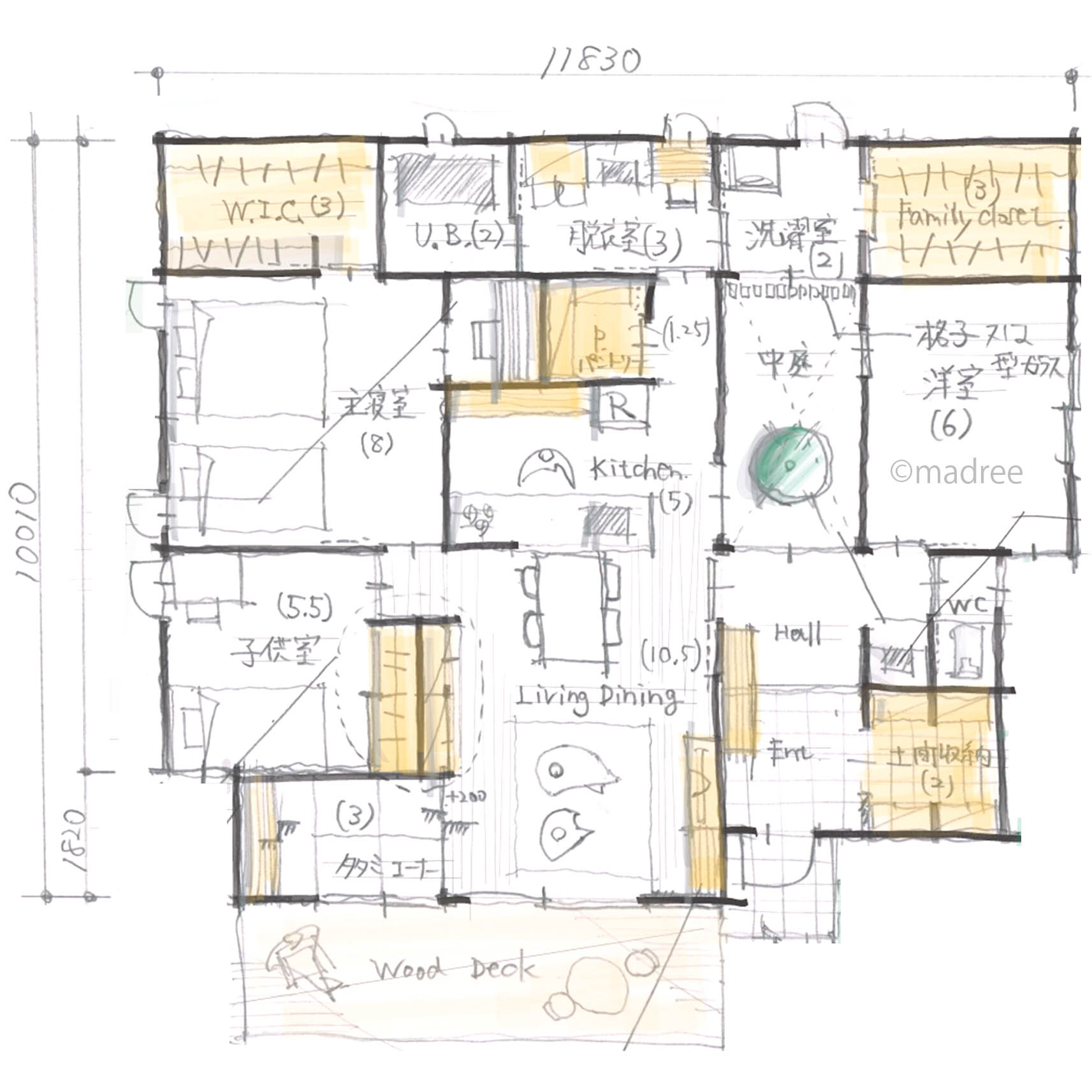
36坪 3LDK中庭をロの字に囲みプライベート空間充実、平屋のように使える1階で家事完結の家の間取り図「madree マドリー 」。
中庭のある平屋の間取りおすすめ6パターン コの字型orロの字型- 一戸建て家づくりのススメ。
コの字の平屋の魅力とは?ロの字との違いやおしゃれな間取りと施工事例を解説 - 群馬県太田市の注文住宅・平屋・自然素材の家に強い工務店タカトーホーム。
中庭を囲む30坪の平屋。
中庭のある平屋の家施工実績平屋専門の注文住宅「STORIA ストリア」千葉で実績No.1平屋の拓匠開発。
中庭のある平屋の家ナチュラル施工事例富山で高気密高断熱の注文住宅工務店ならすまいるほーむ。
2階建×4LDK×33坪開放的な玄関!中庭テラスのあるほぼ平屋の間取りNo.2-14咲くくらし。
中庭のある家のメリット・デメリット&中庭のある家の間取り3選わたしの家木造注文住宅・戸建の住友林業 ハウスメーカー。
20坪台 中庭のある平屋間取り図11選!ヒラヤスタイル。
中庭のある平屋 コの字・ロの字の間取り実例集と注意点注文住宅ヘルプナビ。
中庭があるおしゃれな平屋の間取り11選!コの字型タイプも紹介おしゃれな平屋の間取りNavi。
マイホーム新築記録☆間取り図公開!中庭のある平屋中庭のある平屋。
メリットはホント? 実際に「中庭のある家」に住んで分かったリアル体験 - 平つく。
庭を取り込むコの字型の平屋。
中庭つき「コの字の平屋」に住んで2年。明るさ、おこもり感と心地よさいっぱい:6月に読みたい記事ESSEonline エッセ オンライン。
中庭のある平屋のお家 - haconiwa-house。
参考プラン:中庭のある平屋の家。
橋本不動産・伝統住宅 中庭のある和の住宅。
住宅のプロ監修 中庭のある家の間取り3選!おしゃれな中庭を作るコツも解説建てたい家のイメージづくりおうちキャンバス。
平屋・コの字型の間取り中庭のある約30坪・2〜4LDKの事例、後悔しないポイントを紹介福井の注文住宅・工務店ノークホームズ。
薪ストーブのある中庭住宅 宇都宮。
中庭のあるおしゃれな平屋の間取り実例〜後悔しないためのポイントもあわせて解説〜三重県・愛知県・岐阜県の注文住宅ならアサヒグローバルホーム。
おしゃれな中庭のある家の実例4選!費用の相場やデメリットも解説!住宅展示場のハウジングステージ。
37坪4LDK平屋間取り中庭あり住宅 住宅デザイン 間取り 注文住宅 家づくり 新築 平屋 平屋間取り 平屋暮らし。
平屋に中庭は必要か?中庭のある家の間取りを徹底考察。
中庭のある平屋の間取り図平屋間取り。
中庭のある平屋の間取り例メリットや注意点、おしゃれに見せるコツ注文住宅ブルーハウスデザイン・性能・リゾートライフ、愛知、名古屋、豊橋、豊川、岐阜ならお任せください。
注文住宅 間取りプラン 28坪 中庭で家族だけの楽しみを見つけるコンパクトな間取りの家栃木県宇都宮市の工務店 薄井工務店。
中庭のある平屋 コの字・ロの字の間取り実例集と注意点注文住宅ヘルプナビ。
中庭のある平屋の建築実例5選!メリット、デメリット、間取り例も解説注文住宅なら建築設計事務所フリーダムアーキテクツ。
中庭のある平屋」実例とメリット・デメリットから間取りのポイントまで解説豊橋市の工務店ならハピナイス。