067 住戸タイプ 平面詳細図 展開図施工図屋さん。
保存版 解説!!住宅図面について#01 - 福山市で高性能な家を建てるならNacca Design ナッカデザイン へ。 注文住宅 の設計・デザイン・施工・現場監理も自社で行っています。省エネ性能が高いパッシブハウス・エコハウスを得意とする家づくりをしている会社です。
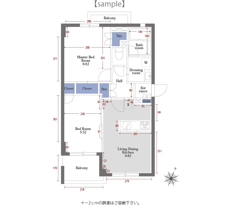
ホームページ 室内寸法記載図面 搭載いたしました。株式会社アクセス・リアルティ。
家具Q&A「府中家具」 バンザイ! - 楽天ブログ。
構造設計講座 RCマンション編 -1│構造設計者を目指す人を応援するサイト「構造設計者になろう!」。
三木達郎+本橋良介MMAAAによる、東京・板橋区の集合住宅「双葉町のアパートメント」architecturephoto.net。
LIXIL ビジネス情報施設から住まいへ 半パブリック空間のトイレ考 2ページまちづくり建築・設計関連コラム。
決算セールLIXIL リクシル 集合住宅用ユニットバスルーム BWシリーズ:BW1014 標準仕様 — クローバーマート。
間取プランバージュアル浦和ウエスト Burj al URAWA WEST<リヴグループ>不動産投資・収益用、投資用オーナーズマンション。
北浦和VALLEY 川辺直哉建築設計事務所 NAOYA KAWABE ARCHITECTS。
4世帯のためのメゾネット集合住宅04デザイン住宅・注文住宅DEN設計一級建築士事務所。
台湾建築雑感 集合住宅の平面計画 1 島 裕之 Hiroyuki Shima。
マンションの間取り図の見方、読み解き方ステップガイドアルファジャーナル。
図面の見方・読み方のコツは?記号や三角法、尺度、寸法等を解説エーエス・ライジング株式会社。
第3章 集合住宅の建て方および住まい方に関する調査 2。
公式 THE RESIDENCE OF TOKYO TY16 新築マンション 菊名駅。
間取り図ZOOM戸越銀座不動産投資のマンション経営はトーシンパートナーズ。
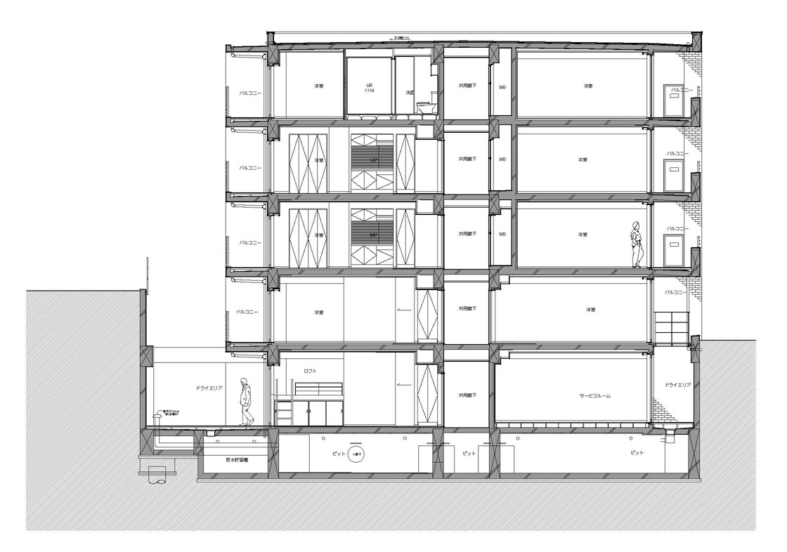
断面図-fevecasa フェブカーサ。
集合住宅」のアイデア 10 件平面図, 建築, 平屋 間取り。
部屋の面積の測り方を学ぶHIあすなろ事務所公式。
まち」と「いえ」の間 のある集合住宅一級建築士事務所 岸雄一郎建築設計事務所の建築事例SuMiKa。
賃貸マンションの設計ノウハウセミナー : ura410ウラシドウ物語。
マンションの間取り図の見方、読み解き方ステップガイドアルファジャーナル。
集合住宅のフレームワークを考える渡辺真理 ‹ Issue No.26 ‹ 『10+1』 DATABASEテンプラスワン・データベース。
間取図とは?見方や記号など読み取れる情報を解説三井のリハウス。
設計案」集合住宅の計画高橋建築事務所。
マンションの平面図とは?具体例と記号の読み方・図面の見方を解説ゼロリノベジャーナル。
AWAZUKU HOUSE section drawing . 愛知県幸田町 集合住宅 木造平屋建て 新築:4戸スタジオヴェロシティstudiovelocity建築建築デザイン構造新築集合住宅中庭スケッチイラスト断面図自然木造まちづくり愛知県幸田町architecture。
マンションの平面図と寸法 リノベのプロがこっそり教える寸法豆知識 - リノまま 東京テアトル。
アパート・マンション間取り図作成事例間取り図作成1点100円~ 国内最安の間取り図作成.com。
賽の目切りで住戸を配置日経クロステック xTECH。
令和3 2021 年の製図試験課題「集合住宅」荘司 和樹 しょうじ かずき。
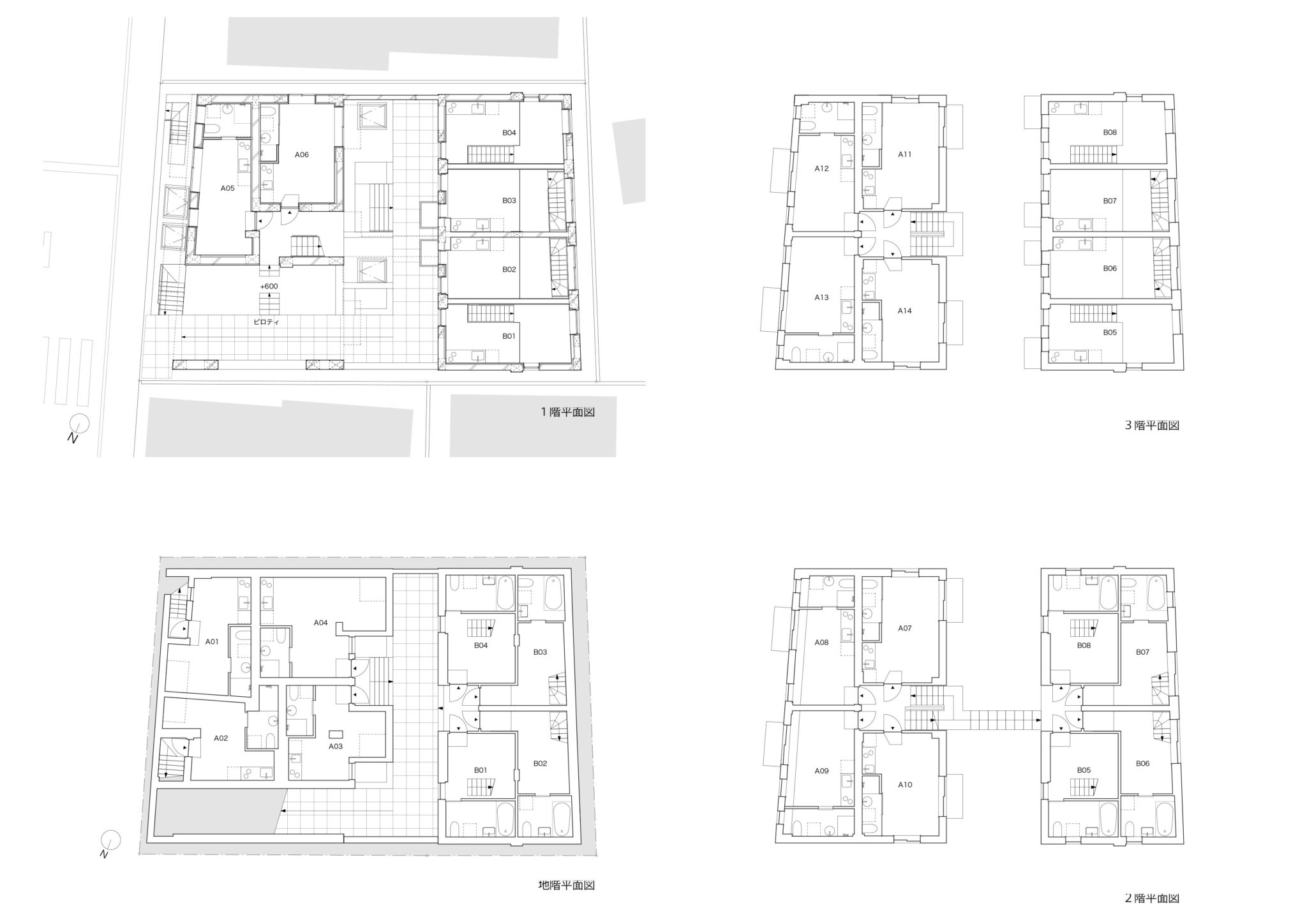
上野毛の集合住宅 平面図 : KAWABE-OFFICE。
マンションの間取り図はどう見るの?見方や主な間取りの特徴を紹介RENOSY マガジン リノシーマガジン。
マンション平面図作成致します 手描き、PDF図面をCAD化致しますココナラ。
平面図とは 住宅建築用語の意味。
LUZ白金 川辺直哉建築設計事務所 NAOYA KAWABE ARCHITECTS。
木造戸建・集合住宅ラフ図CADデータに起こします 納期厳守!二級建築士CAD歴20年が見やすく綺麗に作図しますココナラ。
参考資料Galerie Taisei大成建設。
LIXIL ビジネス情報施設から住まいへ 半パブリック空間のトイレ考 2ページまちづくり建築・設計関連コラム。
a-1.png。
間取り図をより空間をイメージしやすい、寸法入り平面図に変更いたします!!マイホーム株式会社 あなたの大切な不動産に、価値ある提案を。
建築家による木造3階建ての共同住宅 - 高級注文住宅ならジェイホームズ - 横浜の工務店。
間取り図はお部屋の教科書~マンション図面集の凡例記号でお部屋のすべてが分かるアルファジャーナル。
木造戸建・集合住宅ラフ図CADデータに起こします 納期厳守!二級建築士CAD歴20年が見やすく綺麗に作図しますココナラ。
設計案」集合住宅の計画高橋建築事務所。
使い勝手を考慮した雪国にも対応できる集合住宅エクスプラット - エクステリア&ガーデンデザイン・プラン検索サイトRIKCADデータ無料配信。
オプション・その他作成事例間取り図作成1点100円~ 国内最安の間取り図作成.com。
集合住宅のフレームワークを考える渡辺真理 ‹ Issue No.26 ‹ 『10+1』 DATABASEテンプラスワン・データベース。
西蒲田集合住宅ANNEX弐番館 リノベーションプロジェクト 平面図。
狭小敷地の集合住宅 ユミラ建築設計。
各階平面図・立面図・断面図 NEXT21とは? 大阪ガス実験集合住宅NEXT21 大阪ガス 大阪ガス実験集合住宅NEXT21 大阪ガス。
4世帯のためのメゾネット集合住宅05デザイン住宅・注文住宅DEN設計一級建築士事務所。
注文住宅パーフェクトガイド実施設計図書の見方 平面詳細図、矩計図 かなばかりず 編 建築家O-uccino オウチーノ。