吸音・耐火 二層式木毛セメント板『元旦ボード』元旦ビューティ工業 - Powered by イプロス。
TSボード 高圧木毛セメント板 の詳細。
木毛セメント板を塗装して内装仕上げに!我が家の施工方法を紹介yokoyumyumのリノベブログ。
構造や下地用の裏方建材で、狙っては出せない味わいをリノベーション・リフォーム・新築ならスタイル工房。
壁もいろいろ新人ブログコラム竹内建設。
木毛セメント板とは?メリット・デメリットから施工方法・事例も徹底解説! - リノベノシゴト。
木毛セメント板の表情映える家リノベーション施工事例SCHOOL BUS。
木毛板を仕上げにつかう』。
木毛セメント板。
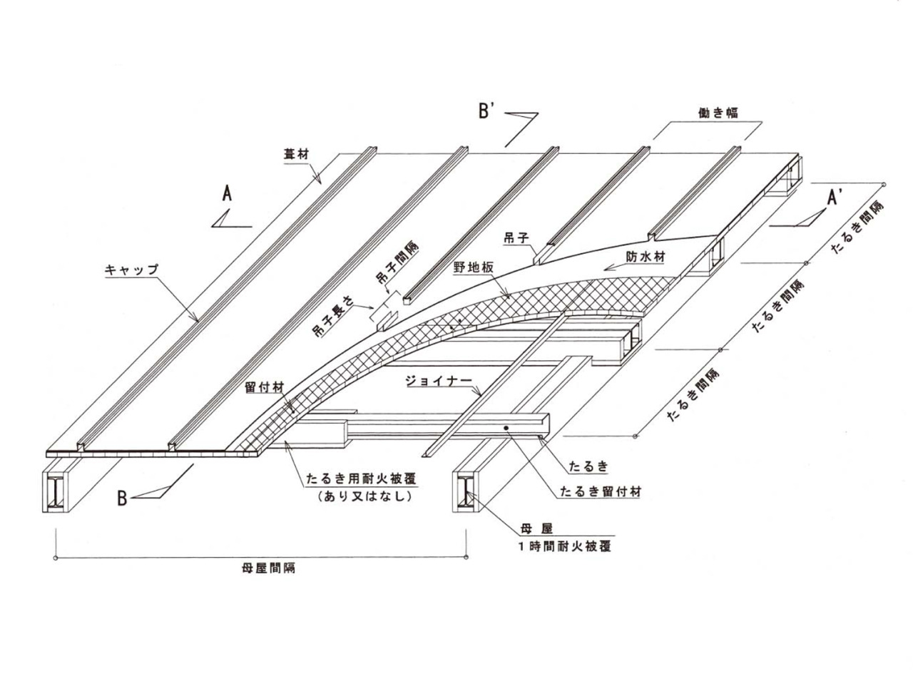
施工図例木毛セメント板、木質系セメント板の興亜不燃板工業株式会社。
見たことはありますか?「木毛セメント板」を使ったリノベーション大阪・横浜のデザインリノベーションならハコリノベ。
木毛セメント板足立区で外壁塗装は大熊塗装店。
木片セメント板を仕上げ材として使用した事例。 少し荒々しい質感ですが、上手に活用すれば室内でも良い雰囲気を演出できます。 和室やガレージ、書斎などの壁・ 天井に採用したり、外部に軒裏に活用するのもアリです。 元々下地材として作られた製品なので、強度と防火性。
029 木毛セメント板とヘリンボーン。巧みなバランス感覚で生まれるラフな心地よさ – Daily Lives Niigata。
木毛セメント板竹村工業株式会社。
板金工事 木毛セメント板落下防止工事🛠️ F工場様岐阜県羽島市岐阜の屋根工事・雨漏り修理専門店 ジオプラン。
029 木毛セメント板とヘリンボーン。巧みなバランス感覚で生まれるラフな心地よさ – Daily Lives Niigata。
天井に木毛セメント板を張る - 木の家でつくる注文住宅 伊豆の国市の工務店「住宅舎」。
製品情報株式会社 栄進工業。
梅雨前だからこそ考えたい屋根下地の事マルホデザイン。
楽天市場 * カット不可 木毛セメント板 野地板厚さ15×910×1820mm 約20Kg 1枚 準不燃材料竹村工業 木毛板 : 建材ステーション。
木毛セメント板。
木毛セメント板 TI-MC15。
TSボード 高圧木毛セメント板 の詳細。
注目の建材木毛セメント板 さりげない個性を魅せるリフォーム・リノベーション事例を紹介!大阪のリノベーションならワンストップ型のクジラ株式会社不動産・設計デザイン・施工・リフォーム中古マンション・中古戸建。
施工図例木毛セメント板、木質系セメント板の興亜不燃板工業株式会社。
木毛セメント板について自然と耐久性が融合する新たな建材 施工事例 豊島区池袋 オフィス - 菊池総建株式会社。
木毛セメント板の施工〜奥神楽坂レンタルスペースspace Rの場合家づくりノート。
軒下の仕上げ。
天井貼り〜壁も木毛セメント板大工さん大苦戦unfiのブログ。
木毛セメント板って結構いいよ大工さん大苦戦unfiのブログ。
空間の表情を決める!人気の建材「シナ合板・ラワン合板・木毛セメント板」の魅力吉岡スタッフブログ新潟の注文住宅・デザイン住宅・新築の住まいディテールホーム。
一級建築士に聞いてみた!「これって何の建材ですか?」CLASS1 ARCHITECT。
木毛セメント板を住宅に使う家づくりノート。
木毛セメント板「レノウッド」の仕上げ材としての可能性インテリアデザイン・建材のトレンドを伝えるWEBメディア、インテリアデザインプラス。
製品情報株式会社 栄進工業。
天井に貼られた木毛セメント板の写真素材83917525- PIXTA。
元旦ボード - 金属屋根メーカー 元旦ビューティ工業。
木毛セメント板「レノウッド」の仕上げ材としての可能性インテリアデザイン・建材のトレンドを伝えるWEBメディア、インテリアデザインプラス。
高圧木毛セメント板『TSボード』 竹村工業イプロス。
クールで味のある建材~木毛セメント板~LOOPLACE古い建物を活かす不動産再生カンパニ。
インダストリアルな壁に木毛セメント板 とは!? 個性的なインテリアにしたい、インダストリアルなデザインにしたい方へ。 おすすめの内装材「 木毛セメント板」のご案内です。 「木毛セメント板」とは、木片とセメントを混ぜてつくる板状の建築材で、元々はビルなどの壁。
木毛セメント板とは?メリット・デメリットから施工方法・事例も徹底解説! - リノベノシゴト。
木毛セメント板TECTURE テクチャー。
倉庫を倉庫にリノベする⑨ 「木毛セメント板を張る」fukuruフクル。
都内某焼鳥屋 軽鉄ボード工事 木毛セメント板使用しています。 木毛セメント板 モクモウセメント バン とは、木材を短冊のように細長く削り出したものを、水を混ぜたセメントで圧縮成型した建材です。 木材・水・セメントのみのシンプルな材料で作られており、接着剤なども。
板金工事 木毛セメント板落下防止工事🛠️ F工場様岐阜県羽島市岐阜の屋根工事・雨漏り修理専門店 ジオプラン。
構造や下地用の裏方建材で、狙っては出せない味わいをリノベーション・リフォーム・新築ならスタイル工房。
見たことはありますか?「木毛セメント板」を使ったリノベーション大阪・横浜のデザインリノベーションならハコリノベ。
天井の木毛板入荷環デザイン舎 BLOG。
木毛セメント板の魅力株式会社片桐建設。
注目の建材木毛セメント板 さりげない個性を魅せるリフォーム・リノベーション事例を紹介!大阪のリノベーションならワンストップ型のクジラ株式会社不動産・設計デザイン・施工・リフォーム中古マンション・中古戸建。
板金工事 木毛セメント板落下防止工事🛠️ F工場様岐阜県羽島市岐阜の屋根工事・雨漏り修理専門店 ジオプラン。
都内某焼鳥屋 軽鉄ボード工事 木毛セメント板使用しています。 木毛セメント板 モクモウセメント バン とは、木材を短冊のように細長く削り出したものを、水を混ぜたセメントで圧縮成型した建材です。 木材・水・セメントのみのシンプルな材料で作られており、接着剤なども。
下地材を仕上げ素材として利用する新潟の建築デザインと高断熱設計を追求する金子勉建築設計事務所。
木毛セメント板を見れる場所@東京その1〜無印良品西武渋谷店家づくりノート。
木毛セメント板の魅力株式会社片桐建設。
倉庫 リノベーション工事~その⑤ 木毛セメント板 取付け編~STUDIO・CASA。
天井をリフォーム根上建築設計士とつくる、三河の暮らしを豊かにする木の家。
木毛セメント板「レノウッド」の仕上げ材としての可能性インテリアデザイン・建材のトレンドを伝えるWEBメディア、インテリアデザインプラス。