建築面積』とは?計算方法をわかりやすく図解 庇・出窓は緩和あり– 確認申請ナビ。
倉庫や工場に庇 ひさし は付けるべき?種類や延床面積との関係も解説!倉庫建築の基礎知識戦略倉庫LABO。
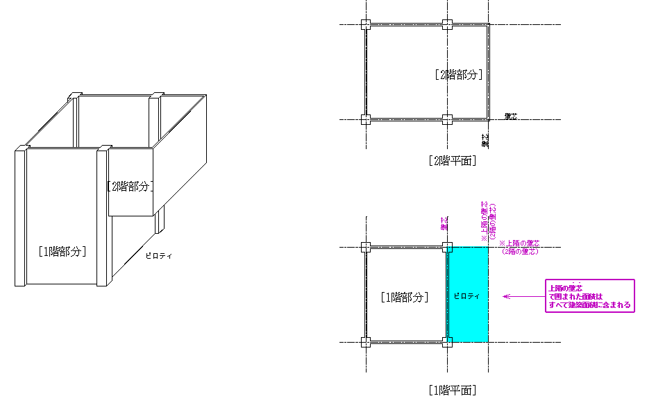
建築面積、床面積について設K日記。
建蔽率と容積率 含まれるのは何?日経クロステック xTECH。
知っておきたい建築法規 建築基準法解説 抜粋。
庇の建築面積の適用・算定。
大庇の家株式會社 山菱工務店。
オト企画業務ご案内。
大庇の家株式會社 山菱工務店。
製図の法規! 製図で使う「建築面積の算定方法」をざっくり解説。
建築面積』とは?計算方法をわかりやすく図解 庇・出窓は緩和あり– 確認申請ナビ。
水野建築事務所。
建物に関する3つの面積株式会社 だんだんホーム。
庇 ひさし は建築面積に含まれる!?意外と知らない庇のデザインや機能性について鹿児島の注文住宅はベガハウス家づくりに役立つスタッフブログ。
面積区画』とは?面積区画の基本事項 1500㎡、1000㎡、500㎡の違い から緩和規定や法改正遍歴などを法文を見ながらわかりやすく解説 »確認申請の学校。
建築面積』とは?計算方法をわかりやすく図解 庇・出窓は緩和あり– 確認申請ナビ。
建築面積』とは?計算方法をわかりやすく図解 庇・出窓は緩和あり– 確認申請ナビ。
PowerPoint プレゼンテーション。
A_LT_1_top。
庇 ひさし は建築面積に含まれる!?意外と知らない庇のデザインや機能性について鹿児島の注文住宅はベガハウス家づくりに役立つスタッフブログ。
建築面積とは?どういう規制を受けるの。
倉庫等の大規模庇等に係る建蔽率算定上の建築面積の算定方法の合理化建築基準法有限会社岩田林業。
倉庫や工場に庇 ひさし は付けるべき?種類や延床面積との関係も解説!倉庫建築の基礎知識戦略倉庫LABO。
建ぺい率や容積率~敷地と建物の関係。
大庇の家株式會社 山菱工務店。
倉庫の庇 ひさし の建築面積が緩和!法改正の背景と内容を解説倉庫建築の基礎知識戦略倉庫LABO。
屋内的用途・床面積の関係 屋内的用途を分かりやすく解説。基本は床面積に算入。Urban & Architecture Blog。
庇の建築面積の適用・算定。
大庇の家株式會社 山菱工務店。
PowerPoint プレゼンテーション。
容積率と延べ床面積積_main。
庇は建築面積に含まれる?建物に関するさまざまな面積と併せて解説庇お役立ち情報庇 ひさし の専門メーカー アルフィン株式会社。
延床面積」ってなに?どこまで入るの?敷島住宅の分譲ブログ。
建ぺい率と建築面積_main。
水野建築事務所。
屋内的用途・床面積の関係 屋内的用途を分かりやすく解説。基本は床面積に算入。Urban & Architecture Blog。
庇の建築面積の適用・算定。
建ぺい率について。
建築面積』とは?計算方法をわかりやすく図解 庇・出窓は緩和あり– 確認申請ナビ。
2012PJ:長さ28mの大庇で来客を雨から守る工場日経クロステック xTECH。
令和5年4月1日施行 大規模庇に係る建築基準法施行令の見直しについて危険物倉庫の建設なら三和建設の RiSOKO® 定温管理にも対応。
令和5年4月1日施行 大規模庇に係る建築基準法施行令の見直しについて危険物倉庫の建設なら三和建設の RiSOKO® 定温管理にも対応。
下屋」とは?場所・読み方・役割と併せて「庇」との違いまで徹底解説。
製図の法規! 製図で使う「建築面積の算定方法」をざっくり解説。
注目環境ビル5 日射を防ぐ1.8mの大庇、京橋3-1プロジェクト日経不動産マーケット情報。
建築面積建築士に独学合格!公認建築士試験過去問題を公開。
知っておきたい建築法規 建築基準法解説 抜粋。
倉庫や工場に庇 ひさし は付けるべき?種類や延床面積との関係も解説!倉庫建築の基礎知識戦略倉庫LABO。
倉庫や工場に庇 ひさし は付けるべき?種類や延床面積との関係も解説!倉庫建築の基礎知識戦略倉庫LABO。
面積区画 工場や倉庫の大規模な庇の取り扱い防火避難規定の解説 » アーキクエスト ARCHIQUEST。
床面積』とは計算方法・用語の定義を解説 不算入の事例も紹介– 確認申請ナビ。
いろいろな面積「建築面積」「建物面積」「敷地面積」について愛知県海部郡蟹江町の有限会社ソーシンサービスブログ。
建築面積とは?バルコニーやひさしは含まれる?敷地面積・延べ面積・延べ床面積との違いをわかりやすく解説!SUUMOお役立ち情報。
建築基準法の一部改正についてビューローベリタスジャパン株式会社。
屋内的用途・床面積の関係 屋内的用途を分かりやすく解説。基本は床面積に算入。Urban & Architecture Blog。
PowerPoint プレゼンテーション。
令和5年4月1日施行 倉庫等の大規模庇等の建築面積の緩和建築基準法とらのまき。
建ぺい率と建築面積_main。
建築面積』とは?計算方法をわかりやすく図解 庇・出窓は緩和あり– 確認申請ナビ。
製図の法規! 製図で使う「建築面積の算定方法」をざっくり解説。
容積率と延べ床面積積_main。
庇の建築面積の適用・算定。
容積率と延べ床面積積_main。
面積」にもいろいろある日経クロステック xTECH。
知っておきたい建築法規 建築基準法解説 抜粋。
大庇の家株式會社 山菱工務店。
令和5年4月1日施行 倉庫等の大規模庇等の建築面積の緩和建築基準法とらのまき。
容積率と延べ床面積積_main。
建築面積』とは?計算方法をわかりやすく図解 庇・出窓は緩和あり– 確認申請ナビ。
建ぺい率と建築面積_main。
令和5年4月1日施行 大規模庇に係る建築基準法施行令の見直しについて危険物倉庫の建設なら三和建設の RiSOKO® 定温管理にも対応。