見本8種類 車庫証明の配置図の書き方月極駐車場編 平面駐車場、貸ガレージ、立体駐車場など形状別に解説車庫証明の所在図・配置図 作成代行きさらぎ行政書士事務所。
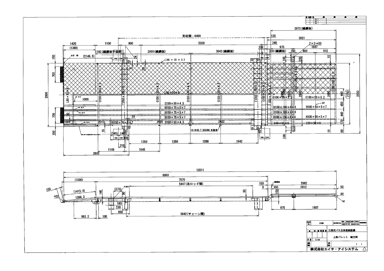
6層7段駐車場 認定品・自走式立体駐車場商品紹介雄健工業株式会社。
立体駐車場の大阪エスケイイ。
自宅マンション 自走式立体駐車場 のパーツレビューRX-8 bodomみんカラ。
立体駐車場の機械式・平面・自走式の仕組みParkingDoctor+ パーキングドクタープラス。
自走式立体駐車場 ~500台規模・用途から探すパーキングシステム製品情報三菱プレシジョン株式会社。
T・Sパーキングシステム:従来形式との比較 効率的で合理的なプラン。
立体駐車場の大阪エスケイイ。
自走式立体駐車場を設計するなら知っておきたいポイント種類・構造・法令 綿半ソリューションズ。
オフィスビルも採用!JFEエンジが機械式駐輪場のCADデータを公開建設ITブログ。
自走式立体駐車場 2層3段株式会社トーカイロード。
立体駐車場の大阪エスケイイ。
6層7段駐車場 自走式立体駐車場。
自走式立体駐車場とは?種類・メリット 綿半。
全自動精算システムシステム一覧パーキングシステムシステム製品情報三菱プレシジョン株式会社。
自走式立体駐車場株式会社内藤ハウス。
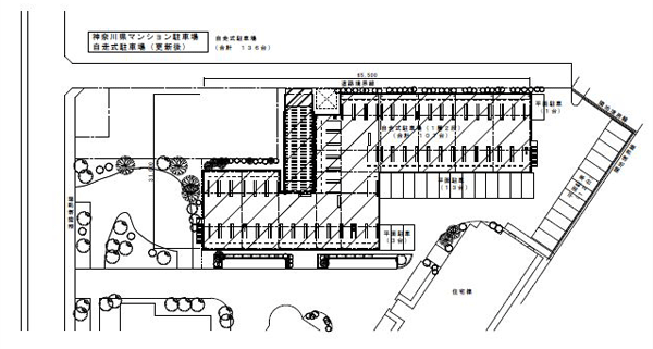
一般社団法人 九州地方計画協会。
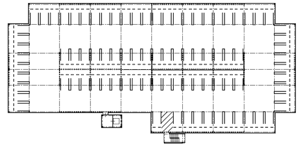
駐車場 床形式と階層自走式立体駐車場大和リース。
防災のための自走式立体駐車場。
第7回 基礎の支持力は十分あったのに・日経クロステック xTECH。
自走式立体駐車場の設計について建築家が知っておくべきことアーキリンク。
自走式立体駐車場の設計について建築家が知っておくべきことアーキリンク。
機械式立体駐車場連動システム – 日本信号株式会社。
自走式駐車場 日成スカイ・パーク 6層7段式 プレハブハウス、立体駐車場は、日成ビルド工業株式会社へ。
立駐製品紹介 リフパークG4B株式会社ヨコイ - そこをなんとかする会社。
駐車場.com駐車場の新設に関するよくあるご質問。
駐車場 床形式と階層自走式立体駐車場大和リース。
立駐製品紹介 リフパズルG1株式会社ヨコイ - そこをなんとかする会社。
資料ダウンロード - 機械式駐車装置サービスサイト 日栄インテック _2段式駐車装置、ピット昇降式、ターンテーブルを得意とした立体駐車装置メーカ。
マンションの立体駐車場の種類自走式立体駐車場の需要が増す背景。
自走式立体駐車場とは?種類・メリット 綿半。
自走式立体駐車場株式会社内藤ハウス。
自走式立体駐車場の設計について建築家が知っておくべきことアーキリンク。
自走式立体駐車場新設計画案 アテンポリフォーム日誌マンション・住宅などの建築・設備の管理とリフォームが得意の一級建築士設計事務所 マンション管理士事務所。
防災のための自走式立体駐車場。
立体駐車場の機械式・平面・自走式の仕組みParkingDoctor+ パーキングドクタープラス。
T・Sパーキングシステム:従来形式との比較 効率的で合理的なプラン。
自走式立体駐車場の設計について建築家が知っておくべきことアーキリンク。
自走式駐車場 日成スカイ・パーク 4層5段式 プレハブハウス、立体駐車場は、日成ビルド工業株式会社へ。
マンション管理ゼミナール『機械式駐車場』の基礎知識マンション生活ハウズイングニュースオンライン。
事業内容Parkキング建設株式会社<公式サイト>。
2層3段駐車場 認定品・自走式立体駐車場商品紹介雄健工業株式会社。
+NBUS7 自走式立体駐車場のモデル化に!スロープ作成 Ver.2.0.0.4。
駐車場 床形式と階層自走式立体駐車場大和リース。
自走式駐車場とは?基礎知識や導入するメリットをご紹介コラムIHI運搬機械株式会社の自走式駐車場。
製品情報:駐車場作図システム。
駐車場.com駐車場の建て替え・増築を検討した方がよいケース:土地の広さに対する建て替え事例。
見本8種類 車庫証明の配置図の書き方月極駐車場編 平面駐車場、貸ガレージ、立体駐車場など形状別に解説車庫証明の所在図・配置図 作成代行きさらぎ行政書士事務所。
立駐製品紹介 リフパークG4Bf株式会社ヨコイ - そこをなんとかする会社。
立体駐車場について公社 立体駐車場工業会のホームページ。
50.北川鉄工所広島県DX推進コミュニティ 公式ホームページ。
駐車場 床形式と階層自走式立体駐車場大和リース。
自走式立体駐車場の設計について建築家が知っておくべきことアーキリンク。
駐車場の新商品の紹介立体駐車場株式会社 北川鉄工所 kitagawa キタガワ プロダクトセンタ。
駐車場.com駐車場の建て替え・増築を検討した方がよいケース:土地の広さに対する建て替え事例。
駐車場.com駐車場建設の価格について、自走式立体駐車場、機械式立体駐車場、コインパーキング。