BESSの家 カントリーログハウス の間取りのお話。
程々の家カスタマイズ計画 絶望編・その1- アンチ程々の家宣言 〜BESSの家で程々じゃないジャパネスク生活。
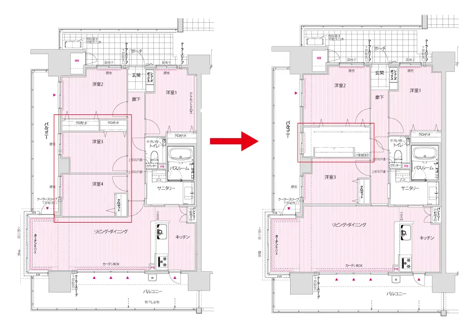
間取り変更リフォームのビフォーアフター事例10選 戸建てもマンションも -リフォームするなら リフォームガイド。
間取りバトル その1- アンチ程々の家宣言 〜BESSの家で程々じゃないジャパネスク生活。
ライフステージに応じた間取り変更のポイント Vol.1京都でかなえる家づくり。
住む」より「楽しむ」BESSの家から、特別モデル 程々の家「晴七色」を2025年7月より新発売株式会社アールシーコアのプレスリリース。
好きな家で暮らす今が一番幸せ。程々の家で叶える「ちょうどいい」セカンドライフ暮らす人BESS。
BESSの「程々の家」は夫が心底建てたかった家だが、値段が全然程々じゃなかった家族と郊外でカントリーログライフ。
程々の家家々BESS。
間取り変更リフォームのビフォーアフター事例10選 戸建てもマンションも -リフォームするなら リフォームガイド。
程々の家の深化系。その名も「泰運」家族と郊外でカントリーログライフ。
木造戸建て住宅の間取り変更リフォームはここまでできる!マンションはダクトの位置に気を付ける!家づくりの知識株式会社Izumida。
220 件の「bess程々の家」のアイデアを今すぐ保存程々の家、家、bessの家 など。
2025年最新版 BESSの家ラインナップ全紹介ログハウス・WONDER・程々の家を徹底解説!週末パパの子連れ日和。
2025年10月更新 BESSの坪単価はいくら?実際に建てた方の口コミや評判も掲載!│おうちパレット。
間取り変更リフォームは何をすればいいの? 費用相場やポイントを解説リフォーム・修理なら リフォマ。
おうち時間を楽しむ間取り実例集①ブログゆめすみか。
間取り変更リフォームのビフォーアフター事例10選 戸建てもマンションも -リフォームするなら リフォームガイド。
DIY 安東先生のアドバイスで間取り変更&完成形が見えました!安東流お片付け 部屋をととのえてGO。
程々の家家々BESS。
BESS ベス 」の日本風家屋、倭様「程々の家」ってどんな家? 特徴と魅力を解説!Dig-itディグ・イット。
BESSの家、その種類を比較検討してみたハウスカスタマンドットコム。
BESSの家 カントリーログハウス の間取りのお話。
可変性に優れた画期的なプラン『間取りのない家』採用伊藤忠都市開発株式会社のプレスリリース。
BESSの家 カントリーログハウス の間取りのお話。
程々の家カスタマイズ計画 絶望編・その2- アンチ程々の家宣言 〜BESSの家で程々じゃないジャパネスク生活。
2025年最新 BESSの家の坪単価と実際に建てた人の口コミ・評判不動産売却の教科書。
程々の家家々BESS。
フルリフォームで間取り変更する際のポイント│クラフトスピリッツ。
程々の家家々BESS。
程々の家家々BESS。
程々の家家々BESS。
リノベーション事例03:間取りを変えずに現代のライフスタイルへreie。
和モダンの完成系? 登り梁がダイナミックすぎる木の家を内見。
築30年の住まい、奥様の夢だった「家族が集う家」に│東京のリフォーム事例。
見せる和モダンの家をルームツアー BESS程々の家。
程々の家カスタマイズ計画 絶望編・その3- アンチ程々の家宣言 〜BESSの家で程々じゃないジャパネスク生活。
BESSの家 LOGWAY多摩 程々の家”十露”前編 ルームツアー。
程々の家大きさ検討委員会 その2- アンチ程々の家宣言 〜BESSの家で程々じゃないジャパネスク生活。
程々の家家々BESS。
間取り変更 ≪ テーマ別リフォームリフォーム・リノベーションなら千葉市で創業46年 マルカミ装商。
ログハウスブランドBESSの家『程々の家』縦貫道丹波ICから車で約5分の立地で適度な田舎暮らし – 田舎暮らし情報館。
倭様 程々の家 八風を見学してきた感想を包み隠さず書いてみるcafe MARO sosena。
程々の家カスタマイズ計画 塊魂編・その2- アンチ程々の家宣言 〜BESSの家で程々じゃないジャパネスク生活。
20代女子・家を買う 自社の家を建てた社員に洗いざらいインタビューしてみました01・程々の家「住む」より「楽しむ」BESSの家。
間取り変更が成功するポイントをリフォーム事例からご紹介!ハウスネットギャラリー リノベーション。
BESS ベス 」の日本風家屋、倭様「程々の家」ってどんな家? 特徴と魅力を解説!Dig-itディグ・イット。
間取り変更北摂・茨木市の注文住宅とリフォーム 橋本工務店。
間取り変更リノベーションにかかる費用やポイントを解説リフォーム会社紹介サイト「ホームプロ」。
程々の家 特別モデル「 晴七色」家々BESS。
間取り変更が成功するポイントをリフォーム事例からご紹介!ハウスネットギャラリー リノベーション。
3つ目のルームツアーは、「程々の家」。空間を広々と使い、家族三世帯でも暮らせるログハウスです! ログハウスログハウス生活ルームツアールームツアー動画程々の家。