最強 パントリー ランドリールーム 間取り (379 無料写真)

福岡注文住宅 30坪台間取り!ランドリールーム&パントリーの家注文住宅お役立ちコラム悠悠ホーム福岡・熊本・佐賀のハウスメーカ。

×

家事時短 パントリー・ランドリールームのある間取りの注意点11選!実例も紹介あきの家づくり。

家事動線が良いランドリールームの間取り図と実例平屋・二階建てのアイデアをご紹介 - 鬼丸ハウス注文住宅・戸建て住宅・アパート建築。

パントリーやランドリールームは必要?家事が楽になる間取り計画のポイント茨城で家を建てるならクレアカーサ。

2025間取り公開絶対知っておくべき回遊導線のプランを紹介。時短や使いやすい家事動線を解説島根鳥取広島のおしゃれな家。

ランドリールームの間取り一覧理想の間取り図と出会う「madree マドリー 」。

ズボラニスト必見!家事が楽になる間取り!洗濯干し場編 staff:松本舞鶴市・福知山市・綾部市で新築&注文住宅を建てるならエコ・ビータ。

パントリーとランドリールームのある間取り例新築間取り。

20坪台 ランドリールーム・サンルームのある平屋間取り図20選!ヒラヤスタイル。

30坪代 家事動線の良い間取りをつくるためのポイントと実例5選株式会社はなおか。

間取り図付 ランドリールーム 洗濯室 で家事動線のよい実例6選!失敗を防ぐポイントも解説三重県・愛知県・岐阜県の注文住宅ならアサヒグローバルホーム。

あなたはどのタイプ?ランドリールームのある間取り例 3タイプよつば暮らしデザイン室。

玄関入ってすぐキッチンがあるレイアウト5連発!動線最強の家事ラク。

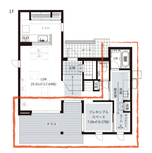
32坪4LDK2階建 キッチンとランドリーがパントリー経由で繋がる間取り No.122Cみゆう間取り相談室。

ランドリールームの間取り一覧理想の間取り図と出会う「madree マドリー 」。

間取り事例有 ランドリールームがある注文住宅で家事効率UP! - 日本住宅ツーバイ神奈川を中心に新築注文住宅・分譲住宅をご提供。

ランドリールームで完結!目につかないところに干せる間取り◎。

注文住宅 パントリーとランドリールームのある間取り家事がはかどる家のポイントや実例についてもご紹介KONOHANA STYLEMAGAGINE。

先月のいいねが多かった間取り2位🥈 . ランドリールームがある間取り◎ 家事ラクな動線もご紹介🙌 □□□ 1階 □□□ .▶︎家事がラクになる動線3つ、ご紹介 . ①玄関→パントリー→キッチン . これは昨日と同じですね! 重い荷物をもつ時間を、減らすことができ。

注文住宅 パントリーとランドリールームのある間取り家事がはかどる家のポイントや実例についてもご紹介KONOHANA STYLEMAGAGINE。

回遊動線家事動線ランドリールームパントリー間取りハーフ吹き抜け吹き抜け小屋裏畳コーナーファミクロシュークロペニンシュラキッチンアイランドキッチンインナーバルコニ。

SUUMO パントリー兼ランドリールーム 湿気に関する注文住宅・ハウスメーカー・工務店・住宅実例情報。

44坪 4LDK玄関直結パントリーでサッと片付く、収納重視した同居予定の二世帯住宅の間取り図「madree マドリー 」。

ランドリーリフォームアイデア~パントリー兼用のランドリースペースリフォマガ。

住まいのレシピ 1〜ランドリールーム・8style編 - トータテマガジン - 住まいのトータテがお届けする情報サイト。

家事ラク動線の決定版!パントリーとランドリールームのおすすめ間取りアイデア7選 - コラム一覧 - お役立ちコラム - パナソニック ホームズ -Panasonic。

パントリーやランドリールームがある間取り実例5選費用とポイントも紹介幸せおうち計画。

砂川 ランドリールームやパントリーで家事のしやすい家空知・砂川の注文住宅、雑貨、オーダー家具、カフェOKUYAMA ORDER HOUSE– 株式会社 奥山工業所。

広々ランドリールーム&大収納キッチンで家事が楽になる間取りをご紹介 - ヤング開発オフィシャルブログ。

パントリーやランドリールームは必要?家事が楽になる間取り計画のポイント茨城で家を建てるならクレアカーサ。

ヒラヤスタイル管理人が好きな3LDK平屋間取り24選!ヒラヤスタイル。

madori_kinoie◁◁間取り公開中🌞 今回は「収納が充実した平屋が建てたい!」とご依頼いただいた間取りをご紹介✨ご要望・パントリー・シュークロ・ファミクロが欲しい・南側にランドリールームが欲しい ・回遊動線で家事が楽になる間取り 3つのご要望を盛り込んで。

和室を挟んだ洗濯動線ってめっちゃ便利! 洗濯動線 家事ラク間取り 便利な間取りシリーズ staff:松本舞鶴市・福知山市・綾部市で新築&注文住宅を建てるならエコ・ビータ。

新築間取りの成功例10選&自分だけの最強間取りを手に入れる方法注文住宅ヘルプナビ。

20坪台 ランドリールーム・サンルームのある平屋間取り図20選!ヒラヤスタイル。

家事動線に優れた間取りとランドリールームについて注文住宅・工務店ならサティスホーム - 三重県四日市・津市。

パントリーとランドリールームの間取りの考え方家事楽な家を叶えるコツは?注文住宅ブルーハウスデザイン・性能・リゾートライフ、愛知、名古屋、豊橋、豊川、岐阜ならお任せください。

理想的なパントリーとは?#1帖パントリーのススメ#コスパの良いパントリー#便利な間取りシリーズ舞鶴市・福知山市・綾部市で新築&注文住宅を建てるならエコ・ビータ。

あなたはどのタイプ?ランドリールームのある間取り例 3タイプよつば暮らしデザイン室。

キッチンからパントリー、ランドリールーム、ファミクロにつながる間取り 36坪3LDK2階建 No.88Bみゆう間取り相談室。

家事動線の良い間取り ママに人気な最強間取り2025年最新版 - コラム一覧 - お役立ちコラム - パナソニック ホームズ - Panasonic。

⇦ワーママ1級建築士が間取りのお悩み解決します🙋‍♀️ 9 10に投稿した 無駄のない平屋 から さらに1.5坪コンパクトにしたパターンの間取りです👀✨プランのポイント💡 ・キッチン、パントリー、ファミクロ、 ランドリールームをまとめた最強家事動線🧹 ・最小限の。

ランドリールームが便利な、水回りが縦に並んだ間取り こんばんは〜 最近は室内干し派の方が増えてる感じがあるので、 ランドリールームがある 間取り、投稿します👍 . 動線にもこだわられていますね〜。 □□□ 1階 □□□ .家事がラクになる動線3つ、ご。

ランドリールームで室内干し、洗濯が快適に岐阜の注文住宅・一戸建ての工務店無垢Storyの山喜建設。

ランドリールームとキッチンの家事動線を整えた「ラク家事間取り 」 - 一戸建て家づくりのススメ。

パントリー・ランドリールーム間取りのつくり方¦家事楽が叶う間取りのコツ豊橋・豊川・蒲郡の注文住宅ならAND DESIGN LAB。

今日は1月にいいねが多かった間取り 第2位をご紹介します🥈 収納たっぷりの平屋間取りでした◎ ①まずは土間収納&ガレージ収納!土間収納はこれだけ広ければ、 靴の他にもベビーカーや三輪車など お子さんグッズも置けそうです🙌 隣にはコート収納室も設けたので 今の。

36坪 3LDKウォークスルーで洗濯動線は効率良く!ランドリールームのある平屋の間取り図「madree マドリー 」。

ランドリールーム・サンルームのある平屋間取り図49選! 室内物干しで家事動線がよい家 ヒラヤスタイル。

これからの住まいに「室内物干し、パントリー、玄関土間収納」が大事な理由。 DesignHouse.BROOK.岡山県総社市の注文住宅設計事務所&工務店。

施工事例でみる快適なランドリールーム!おすすめの間取りや収納のコツを紹介 - 注文住宅・デザイン住宅のコンフォート建築設計工房株式会社。

パントリーとランドリールームの間取りの考え方家事楽な家を叶えるコツは?注文住宅ブルーハウスデザイン・性能・リゾートライフ、愛知、名古屋、豊橋、豊川、岐阜ならお任せください。

42坪 5LDK自分時間はパーソナルスペースで、お互いが気を使わない距離で生活を楽しむ二世帯住宅の間取り図「madree マドリー 」。

間取り・家づくりのシミュレーション2階建て 4LDK+SIC+パントリー+FC+他 間口:南 10,920mm信越 2000万円注文住宅・家を建てるなら一建設株式会社。

30坪代 家事動線の良い間取りをつくるためのポイントと実例5選株式会社はなおか。

注文住宅 パントリーとランドリールームのある間取り家事がはかどる家のポイントや実例についてもご紹介KONOHANA STYLEMAGAGINE。