チーフアーキテクトとは?積水ハウスで建てたいなら知っておくべし!ゆたさんと積水ハウス。
チーフアーキテクトたちの家づくり実例集 - Premium Design Selection戸建住宅積水ハウス。
埼玉県の積水ハウスチーフアーキテクトと建てたオシャレな平屋実例紹介家づくりにおいて大事なコト。
チーフアーキテクトの細かな気遣いが神レベルな件 積水ハウスゆるみみハウス。
イベント参加申込フォーム。
積水ハウス 関西デザインオフィス チーフアーキテクトPV1ヤサシイシャシン。
選ばれし優秀な設計士の証である積水ハウスチーフアーキテクト制度とは?家づくりにおいて大事なコト。
DESIGN OFFICE 浜松― ご相談予約静岡県全国各地のイベントのご案内積水ハウス。
積水ハウスチーフアーキテクトが大切にしていること。
積水ハウスのチーフアーキテクトとは?実際に会う方法も解説。
日経ウーマノミクス・プロジェクト。
イエタテHP限定 DESIGN OFFICE又一級建築士によるプランニング相談会 - 積水ハウス。
積水ハウス『チーフアーキテクトが手掛けた黒い箱の家』。
愛媛県内チーフアーキテクトデザイン 実例集 - 積水ハウス 愛媛支店の施工実例いえひめ。
2025完全版 積水ハウスの特徴まとめ世界一選ばれる理由はコレだ!ハウスメーカー選びおうちキャンバス。
住まいをプロデュースする設計のプロ集団!!積水ハウスさんの『チーフアーキテクト』について聞いてみたじゅうたく通信。
積水ハウスのチーフアーキテクトと建てた30坪の軒が深いオシャレな実例紹介家づくりにおいて大事なコト。
Chief Architect Works積水ハウス。
チーフアーキテクトの細かな気遣いが神レベルな件 積水ハウスゆるみみハウス。
チーフアーキテクトとは?積水ハウスで建てたいなら知っておくべし!ゆたさんと積水ハウス。
愛媛県内チーフアーキテクトデザイン 実例集 - 積水ハウス 愛媛支店の施工実例いえひめ。
Chief Architect Works積水ハウス。
積水ハウスの”億邸”、品川展示場でチーフアーキテクトのこだわりを見た:住宅市場 3 4 ページ- BUILT。
第19話 積水ハウスのチーフアーキテクト様との家づくり:初回の面談 姫路市 積水ハウスでマイハウス。
積水ハウス 関西デザインオフィス チーフアーキテクトPV1ヤサシイシャシン。
広島県の積水ハウスチーフアーキテクトと建てた29坪のオシャレな実例紹介家づくりにおいて大事なコト。
夜景を活かす」 住まいの外観は昼間見ることで 外観の構成や素材感の美しさを包み隠さず感じ取ることができます。 その良さとは逆に夜景の外観は適切な照明計画をすることで プロポーションを曖昧にしながら 敢えての美しさを引き出すことができます。 照明計画を入念に。
積水ハウス🏠 吹き抜けと長い2つのライトが印象的なLDK😍✨ 戸建て住宅から分譲マンション、賃貸住宅などを手掛けるハウスメーカー積水ハウス🏡👇このお家を建てた会社のInstagram @sekisuihouse------------------------------------------ お家づくり研究所 おうち。
チーフアーキテクトの細かな気遣いが神レベルな件 積水ハウスゆるみみハウス。
チーフアーキテクトが手がける、唯一無二の家づくりとはビズスタ福岡版。
積水ハウス杜の住宅公園みらいえ。
積水ハウス チーフアーキテクトが大切にしていること - YouTube。
積水ハウスの「PLANNING TABLE」 今なら素敵なプレゼントも!antenna アンテナ。
夜景を活かす」 住まいの外観は昼間見ることで 外観の構成や素材感の美しさを包み隠さず感じ取ることができます。 その良さとは逆に夜景の外観は適切な照明計画をすることで プロポーションを曖昧にしながら 敢えての美しさを引き出すことができます。 照明計画を入念に。
土地面積36坪&延べ床面積27坪の積水ハウスチーフアーキテクト実例紹介家づくりにおいて大事なコト。
Chief Architect Works積水ハウス。
住まいをプロデュースする設計のプロ集団!!積水ハウスさんの『チーフアーキテクト』について聞いてみたじゅうたく通信。
Chief Architect Works積水ハウス。
設計担当がCA チーフアーキテクト になる前に 積水ハウスのコンペで入選した我が家𖠿⸝ こんな家、好きな人いるかなー。
日経ウーマノミクス・プロジェクト。
Chief Architect Works積水ハウス。
積層の箱実例TOP CREATORS DESIGN Chief Architect Works戸建住宅積水ハウス。
Chief Architect Works積水ハウス。
積水ハウス『チーフアーキテクトが手掛けた''黒い箱の平屋''』 おうちlabo。
Chief Architect Works積水ハウス。
チーフアーキテクトたちの家づくり実例集 - Premium Design Selection戸建住宅積水ハウス。
広島県の積水ハウスチーフアーキテクトと建てた29坪のオシャレな実例紹介家づくりにおいて大事なコト。
積水ハウス チーフアーキテクトが手掛けた邸宅の完成お披露目会開催暮らしづくりラボ ~家づくりから住まいづくり、暮らしづくりに役立つ情報発信サイト~。
チーフアーキテクトによるファーストプラン大公開!~積水ハウス編~ゆるみみハウス。
イエタテHP限定 DESIGN OFFICE又一級建築士によるプランニング相談会 - 積水ハウス。
Chief Architect Works積水ハウス。
愛媛県内チーフアーキテクトデザイン 実例集 - 積水ハウス 愛媛支店の施工実例いえひめ。
実例一覧TOP CREATORS DESIGN Chief Architect Works戸建住宅積水ハウス。
積水ハウス『チーフアーキテクトが手掛けた、カーテンが必要ない平屋。
積水ハウス 関西デザインオフィス チーフアーキテクトPV2ヤサシイシャシン。
広島県の積水ハウスチーフアーキテクトと建てた29坪のオシャレな実例紹介家づくりにおいて大事なコト。
愛媛県内チーフアーキテクトデザイン 実例集 - 積水ハウス 愛媛支店の施工実例いえひめ。
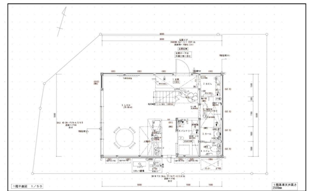
積水ハウス契約後チーフアーキテクトOさんによるファーストプラン 間取り を公開!家blog 積水ハウスで25坪のコンパクトな家づくり。
新潟市中央区 設計士のトップランナーと共に夢を叶える。“チーフアーキテクト”による「家づくりプランニング」が開催!!―積水ハウス―じゅうたく通信新潟の住宅情報メディア。
チーフアーキテクトってどんな人? “理想の暮らし”を叶えようantenna アンテナ。
積水ハウス『開放感が凄い! 眺望を楽しむ高台に建つ平屋』 おうちlabo。
Chief Architect Works積水ハウス。